Heugemerstraat 265, Maastricht

Perceeloppervlakte:

368 m2

Woonoppervlakte:

163 m2

Inhoud:

637 m3

Terug naar overzicht

Deel deze woning:

Deze goed onderhouden woning biedt alles wat je zoekt: ruimte, comfort en duurzaamheid op een uitstekende locatie. In 2023 is er royale uitbouw met vloerverwarming en een lichtstraat gerealiseerd. Daarnaast beschikt de woning over 4 volwaardige slaapkamers, badkamer, een ruime woon-/eetkeuken, garage, achtertuin met achterom en 10 zonnepanelen.

Lees meer

Kadastrale kaart

Download

Energielabel

Download

Woningbrochure

Download

Bezichtigings afspraak niet mogelijk.

U moet een geregistreerd account hebben voordat u een bezichtiging kan plannen.

Aanmelden Inloggen

Kenmerken

Wijk : Heugem
Soort : woonhuis
Bouwaard : vrijstaande woning
Woonoppervlakte : 163 m²
Perceeloppervlakte : 368 m²
Inhoud : 637 mᶟ
Aantal slaapkamers : 4 slaapkamer(s)
Staat : goed
Bouwjaar : 1970
Energielabel : D

Isolatie en installaties

Type isolatie : dakisolatie
Verwarming : privé-hoogrendementsketel
Warm water installaties : combi cv
C.V.-combi (warmwaterdeel) : Ja
Ventilatie : natuurlijk
Zonnepanelen : 10
Beglazing woonkamer : dubbel
Beglazing slaapkamer : dubbel

Afmetingen en voorzieningen

Woonkamer : 31 m²
Eetkamer : 30 m²
Hal : 14 m²
Keuken : 18 m²
Keuken apparatuur : spoelbak, 5 pits kookplaat, gas, oven, magnetron, combi-oven, koelkast hoog model, vriezer, vaatwasser, afzuigkap, koffie-apparaat
Badkamer : 6 m²
Badkamer voorzieningen : ligbad, douche, toilet, wastafel
Toilet : 1 m²
Toilet voorzieningen : toilet, fonteintje
Slaapkamer 1 : 18 m²
Slaapkamer 2 : 7 m²
Slaapkamer 3 : 9 m²
Slaapkamer 4 : 15 m²
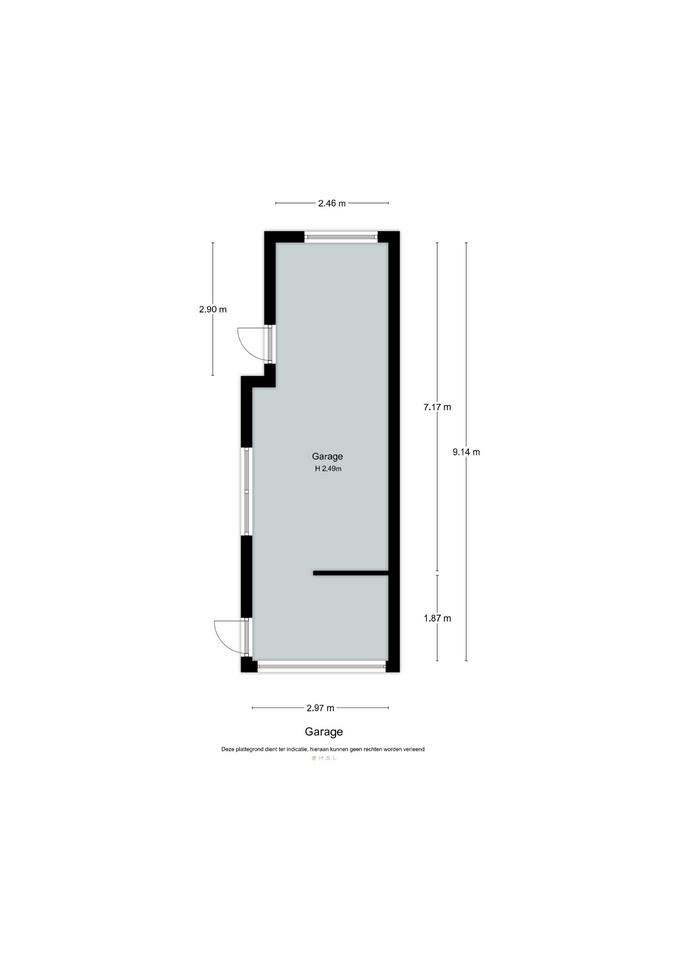
Garage : Ja
Garage type : enkel
Garage : 26 m²
Parkeergelegenheid : vrij parkeren
Buitenruimte : tuin en terras
Zolder : 8 m²
Eigen fietsruimte : Ja

Omschrijving

Deze goed onderhouden woning biedt alles wat je zoekt: ruimte, comfort en duurzaamheid op een uitstekende locatie. In 2023 is er royale uitbouw met vloerverwarming en een lichtstraat gerealiseerd. Daarnaast beschikt de woning over 4 volwaardige slaapkamers, badkamer, een ruime woon-/eetkeuken, garage, achtertuin met achterom en 10 zonnepanelen.

De Heugemerstraat ligt in de historische kern van het Maasdorp Heugem, ten zuidoosten van het stadscentrum van Maastricht en op korte loopafstand van het complete Winkelcentrum "De Beente" met naastgelegen gezondheidscentrum en een dierenarts. Het stadscentrum van Maastricht bereik je na een wandeling van een klein halfuurtje, het centraal station zelfs binnen 25 minuten (per fiets binnen 10 minuten bereikbaar). Belangrijke uitvalswegen, het MUMC+, MECC en diverse faculteiten van Maastricht University liggen om op korte afstand. Deze prachtige woonomgeving biedt u voor nu en voor de toekomst een prettig leef- en woonklimaat. 

INDELING:

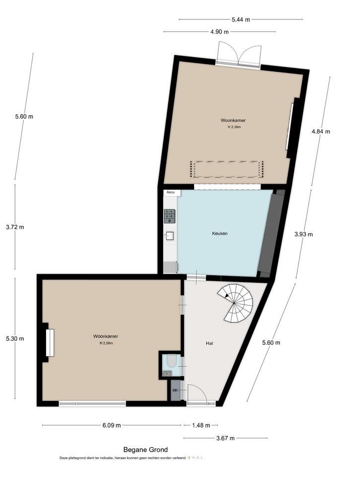
Begane grond:
Via de voortuin kom je in de ruime entree/hal (14m²) voorzien van meterkast, toiletruimte en trapopgang naar de eerste verdieping. Het toilet is in 2024 vernieuwd en voorzien van een wandcloset, fonteintje en zelfs een geïntegreerde radio.
De begane grond is volledig afgewerkt met een stijlvolle travertinvloer, wat zorgt voor een luxe en onderhoudsvriendelijke uitstraling. Aan de voorzijde vindt u een sfeervolle woonkamer (31m²) met schouw en houtkachel, wat bijdraagt aan het wooncomfort en de aangename sfeer in de ruimte.

De woning is aan de achterzijde uitgebouwd in 2023. Deze uitbouw (30m²) is volledig geïsoleerd, voorzien van vloerverwarming en een prachtige lichtstraat, wat zorgt voor een oase aan natuurlijk licht. In de uitbouw bevindt zich een gezellige zithoek met een elektrische haard met verwarmingsfunctie die zorgt voor extra sfeer en warmte in de koudere maanden.

Centraal in de woning bevindt zich de ruime woon- en eetkeuken (18m²), een functioneel ingedeelde ruimte die volledig is uitgerust met hoogwaardige inbouwapparatuur. Hoewel deze ruimte zelf geen ramen heeft, is er sprake van een prettige verbinding met het daglicht uit de achtergelegen kamer/uitbouw. Dankzij de lichtstraat in de uitbouw wordt er veel natuurlijk licht doorgelaten, wat bijdraagt aan een open en lichte sfeer in de keuken.
De keuken beschikt over een rechte opstelling met daartegenover een royale kastenwand. Deze slimme indeling zorgt voor optimaal werkcomfort en veel opbergruimte. De afwerking is verzorgd en tijdloos, met onder meer een massief houten aanrechtblad en de volgende (inbouw)apparatuur, te weten: 5-pits gasfornuis met afzuigkap, vaatwasser en een magnetron. De kastenwand is voorzien van een stoomoven, combi-magnetron, inbouw koffiezetapparaat, koelkast en een diepvries.
In 2023 is de keuken bovendien uitgerust met een airco, die zowel kan koelen als verwarmen.

De achtertuin is vrijwel geheel bestraat en beschikt over een handige achterom. U heeft tevens toegang tot een garage (26m²), voorzien van een wasmachineaansluiting en een vernieuwd kunststof dak (circa 10 jaar oud).

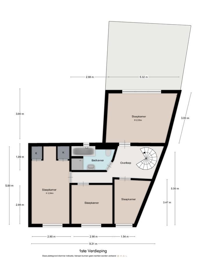
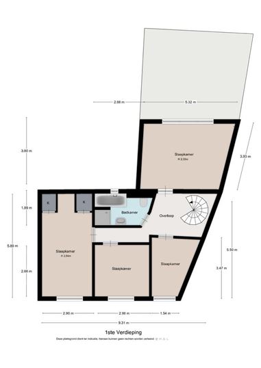
Eerste verdieping:
De eerste verdieping beschikt over een praktische indeling met vier volwaardige slaapkamers van respectievelijk 18m², 7m², 9m² en 15m², waardoor de woning uitermate geschikt is voor grotere gezinnen, thuiswerken of het creëren van een extra hobby- of werkkamer. De kamers zijn verdeeld over de voor- en achterzijde van de woning en bieden elk voldoende ruimte voor een bed, kastruimte en bureau of zitgedeelte. De slaapkamer in de uitbouw gelegen op de eerste verdieping is voorzien van dakisolatie.

De badkamer (6m²) is compleet uitgerust met een ligbad, een afzonderlijke douche, een vaste wastafel en een tweede wandcloset. Dankzij het aanwezige raam profiteert de ruimte van natuurlijke daglichttoetreding. De badkamer is netjes onderhouden en functioneel ingericht.

Tweede verdieping:
Via een vlizotrap bereikt u de tweede verdieping, waar een ruime bergzolder (8m²) aanwezig is. Deze zolder biedt volop opbergmogelijkheden.

Extra informatie:
- Verrassend ruime vrijstaande woning op een uitstekende locatie;
- Woning beschikt over 4 slaapkamers;
- De achterzijde van de woning is voorzien van rolluiken;
- De begane grond is voorzien van een mooie travertinvloer;
- Onderhoudsvriendelijke achtertuin met achterom;
- Royale woon- eetkeuken in rijopstelling met aparte kastenwand;
- Definitief energielabel 'D' geldig tot 07-10-2035;
- Airco geplaatst in de keuken in 2023;
- Toiletruimte vernieuwd in 2024 met wandcloset, fonteintje en geïntegreerde radio;
- Verwarming en warm water wordt verkregen middels combiketel (Remeha Calenta; bj. 2021; eigendom);
- Dak Uitbouw eerste verdieping geïsoleerd;
- Dakgoten vernieuwd circa 12 jaar geleden;
- Volledig geïsoleerde aanbouw met vloerverwarming en elektrische haard met verwarmingsfunctie;
- Voorzien van kunststof kozijnen met isolerende beglazing (HR);
- 10 zonnepanelen aanwezig (eigendom, geplaatst in 2021);
- Alle vermelde afmetingen zijn indicatief en kunnen afwijken van de werkelijkheid.

Algemene informatie:
De woning is rustig gelegen in de historische kern van Heugem met vergunningsvrije parkeervoorzieningen en bushalte nabij. De bereikbaarheid van de uitvalswegen van en naar Maastricht zijn heel goed. De wijk Heugem is gelegen tussen de Maas en de A2 en ten zuidoosten van Maastricht op ca. 10 minuten fietsen vanaf het centrum van Maastricht. De wijk Randwyck, met onder meer het MUMC, het Provinciehuis en het MECC ligt aan de noordkant van Heugem. Alle gewenste voorzieningen voor dagelijks nut zijn in de buurt gelegen zoals een frituur en broodjeszaak, winkels (winkelcentrum De Beente), sportterreinen voor voetbal, 3 basisscholen, kinderopvang, buurtcentrum de Klaekeburg, etc. De wijk Heugem is volgens haar inwoners dan ook één van de meest aantrekkelijke wijken nabij het centrum van Maastricht om te wonen vooral vanwege het goede woonklimaat, strategische ligging, historische karakter, aanwezige voorzieningen en prettige sfeer.

Ter bescherming van de belangen van zowel koper als verkoper, wordt uitdrukkelijk gesteld dat een koopovereenkomst met betrekking tot deze onroerende zaak eerst dan tot stand komt nadat koper en verkoper de koopovereenkomst hebben getekend ("schriftelijkheidsvereiste"). De termijn die wordt opgenomen voor eventuele (overeengekomen) ontbindende voorwaarden (bv. Financiering) is in de regel 4 tot 6 weken na het sluiten van de mondelinge wilsovereenkomst.

De waarborgsom/bankgarantie is 10% van de koopsom. De koper dient deze 2 weken ná het vervallen van de ontbindende voorwaarden bij de desbetreffende notaris te deponeren.

Koper is te allen tijde gerechtigd voor eigen rekening een bouwkundige keuring te (laten) verrichten dan wel andere adviseurs te raadplegen teneinde een goed inzicht te verkrijgen over de staat van onderhoud.

Bovenstaande vrijblijvende informatie is door Pooters Makelaardij met de nodige zorgvuldigheid samengesteld. Echter aanvaardt Pooters Makelaardij geen enkele aansprakelijkheid voor enige onvolledigheid, onjuistheid of anderszins, dan wel de gevolgen daarvan. Oppervlakten en maten zijn indicatief.

 

Prijs details

Vraagprijs : € 575.000,- k.k.
Aanvaarding : in overleg

Vergelijkbare woningen

Bieslanderweg 17

€ 595.000,- k.k.

Maastricht, Biesland
woonhuis
5 slaapkamer(s)
131 m2
520 m3
Bekijk details

Burgemeester Ceulenstraat 93

€ 675.000,- k.k.

Maastricht, Sint Pieter
woonhuis
3 slaapkamer(s)
175 m2
684 m3
Bekijk details

We plaatsen cookies op je computer om jouw instellingen te bewaren en om te begrijpen hoe mensen onze website gebruiken. Door gebruikt te maken van onze website ga je hiermee akkoord.

Meer informatie