Stellalunet 34 B, Maastricht

Verdieping:

eerste verdieping

Woonoppervlakte:

99 m2

Inhoud:

355 m3

Terug naar overzicht

Deel deze woning:

APPARTEMENT MET PRIVÉ PARKEERPLAATS EN ENERGIELABEL A+

Op een toplocatie in het geliefde Céramique, aan de Stellalunet 34-B, ligt dit ruime en energiezuinige (energielabel A+) appartement op de eerste verdieping, met royale living, 2 slaapkamers en loggia, compleet met eigen privé parkeerplaats én ruime berging in het souterrain.

Lees meer

Energielabel

Download

Kadastrale kaart

Download

Woningbrochure

Download

Bezichtigings afspraak niet mogelijk.

U moet een geregistreerd account hebben voordat u een bezichtiging kan plannen.

Aanmelden Inloggen

Kenmerken

Wijk : Ceramique
Soort : appartement
Type appartement : portiekflat (appartement)
Woonoppervlakte : 99 m²
Inhoud : 355 mᶟ
Aantal slaapkamers : 2 slaapkamer(s)
Staat : goed
Verdieping : eerste verdieping
Lift : Ja
Bouwjaar : 1997
Energielabel : A+

Isolatie en installaties

Type isolatie : gevelisolatie, dakisolatie, vloerisolatie
Verwarming : stadsverwarming
Ventilatie : mechanisch
Beglazing woonkamer : dubbel
Beglazing slaapkamer : dubbel

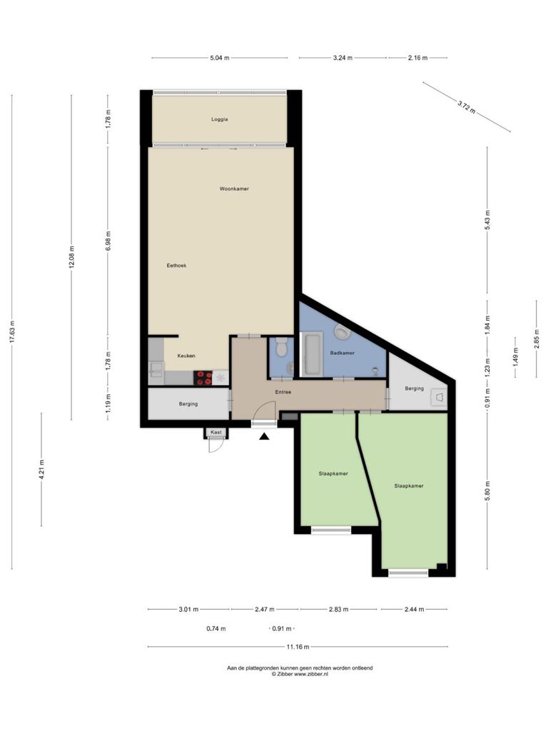
Afmetingen en voorzieningen

Woonkamer : 38 m²
Hal : 9 m²
Keuken : 6 m²
Keuken apparatuur : dubbele spoelbak, 4 pits kookplaat, keramisch, koelkast tafelmodel zonder vriesvak, afzuigkap
Badkamer : 6 m²
Badkamer voorzieningen : ligbad, douche, wastafel
Toilet : 1 m²
Toilet voorzieningen : toilet, fonteintje
Slaapkamer 1 : 10 m²
Slaapkamer 2 : 16 m²
Bijkeuken : 4 m²
Opbergruimte : 6 m²
Parkeergelegenheid : vergunning mogelijk, betaald parkeren, parkeerplaats (binnen)
Buitenruimte : balkon
Buitenruimte : 9 m²
Eigen fietsruimte : Ja

Omschrijving

APPARTEMENT MET PRIVÉ PARKEERPLAATS EN ENERGIELABEL A+

Op een toplocatie in het geliefde Céramique, aan de Stellalunet 34-B, ligt dit ruime appartement op de eerste verdieping, compleet met eigen privé parkeerplaats én ruime berging in het souterrain. Dit energiezuinige (energielabel A+) appartement combineert comfort en functionaliteit op een unieke manier; perfect voor wie op zoek is naar gezellig stadswonen met alle gemakken binnen handbereik. Het appartement is gelegen op loopafstand van Wyck en het oude stadscentrum van Maastricht. Huisarts, apotheek en sportschool liggen letterlijk om de hoek en op Plein 1992 bevinden zich diverse winkels voor de dagelijkse boodschappen.

Dit object is onderdeel van de Jardin Céramique, een goed onderhouden appartementencomplex met lift en bellentableau met video-intercom. Het appartement is basic afgewerkt en beschikt over een prettige en functionele indeling, met o.a. een royale woonkamer, een moderne keuken, twee slaapkamers, een nette badkamer, berging, technische ruimte en een ruim inpandig en een overdekt balkon (loggia) gelegen aan de prestigieuze Avenue Céramique, welke middels schuiframen gesloten kan worden. Kortom, dit object moet u gezien hebben!

 

INDELING:

Souterrain:
Privé parkeerplaats (nummer 62) in onderliggende parkeergarage met toegangsbeveiliging en automatische deuren, welke toegang geven tot de lift en de bergruimtes. Hier bevindt zich ook de containerruimte voor het afval. De privéberging (ca. 6,5m²) biedt voldoende mogelijkheden voor opslag van spullen en/of het plaatsen van fietsen.  

Begane Grond:
Representatieve ontvangsthal met brievenbussen, bellentableau met video-intercom, lift en toegang tot trappenhuis. Aan de achterzijde is er toegang naar de gemeenschappelijke binnentuin van de diverse complexen alwaar men in alle rust kan genieten. Hier bevinden zich meerdere bankjes, een gazon en diverse volwassen beplantingen. 

Eerste Verdieping:
Via de lift of met de trap bereikt men de corridor van de eerste verdieping, alwaar direct toegang naar het appartement. Naast de voordeur bevinden zich  een tweetal technische ruimtes: meterkast (met automatische groepen en slimme meters) en de berging met de unit voor de stadsverwarming.

Ruimtelijke entree/hal (ca. 9m²) met toegang tot alle vertrekken. Sfeervolle en lichte woonkamer (ca. 38m²) met aansluitend de open keuken en de loggia. De keuken (ca. 5,5m²) beschikt over een lichte keukeninstallatie in hoekopstelling met boven- en onderkasten en de navolgende apparatuur: 1,5 spoelbak, keramische kookplaat met 4 zones, RVS-afzuiginstallatie en een koelkast. Het geheel is netjes afgewerkt met een betegelde achterwand en een kunststof werkblad. De loggia (ca. 9m²) bevindt zich aan de straatzijde van de prestigieuze Avenue Céramique en kan met glazen schuifwanden geheel afgesloten worden. In deze loggia kan men rustig genieten van alles dat deze prettige woonomgeving te bieden heeft. 

Verder bevinden zich in een appartement een tweetal slaapkamers (respectievelijk ca. 10 en 16m²), voorzien van draai-kiepramen. Geheel betegelde badkamer (ca. 6m²) voorzien van ligbad, douche en een vaste wastafel. Separaat toilet (ca. 1,5m²), deels betegelde en voorzien van een staand closet en een fonteintje. Technische ruimte (ca. 3,5m²), alwaar opstelling unit voor de mechanische ventilatie en een extra berging/wasruimte (3,5m²) met de aansluitpunten voor het witgoed. 

Het gehele appartement (m.u.v. badkamer en toilet) beschikt over Novilon vloerafwerking, hardhouten kozijnen met isolerende beglazing en wanden en plafonds voorzien van spuitwerk. 

Extra Informatie:
- Sfeervol en ruim appartement op de eerste verdieping met lift en parkeerplaats;
- Modern complex met video-intercom-systeem;
- Gebruiksoppervlakte wonen bedraagt ca. 99m²;- Hardhouten kozijnen met isolerende beglazing;
- Energielabel A+, geldig tot 20-10-2035 ;
- Gesloten loggia met glazen schuifwanden;
- Stadsverwarming voor warmte en warm water;
- Moderne meterkast met slimme meters;
- Privéberging van ca. 6,5m² in het souterrain;
- V.v.E. kosten € 217,84 per maand voor o.a. opstal-, glasverzekering, reservering groot- en klein onderhoud, algemene ruimtes met schoonmaak;
- Eigen parkeerplaats in de afgesloten parkeergarage;
- Twee slaapkamers en veel bergruimte;
- Centrale ligging in het bruisende Céramique;
- Alle vermelde afmetingen zijn indicatief en kunnen afwijken van de werkelijkheid.

Algemene Info:
Dit prachtige appartement is gelegen aan de Stellalunet 34-B in Wyck. In Wyck zorgt een verzameling van hippe, authentieke winkels en speciaalzaken er samen voor dat dit momenteel een van de favoriete winkelstraten van Maastricht is. Zowel fashion, kunst en good food komen hier samen in mooie oude straten en pandjes. Dit maakt deze omgeving tot een heerlijke plek om te slenteren, te shoppen en aan te schuiven voor een hapje en drankje. Ondanks dat de woning midden in de Bourgondische gezelligheid ligt, is het binnen rustig wonen en ervaart men geen geluidsoverlast van winkelend publiek of terrassen. Verder kent Wyck een uitstekend voorzieningenniveau met winkels, speciaalzaken, restaurants en cafés. Ook bent u op loopafstand van het trein-/busstation en het op de rechteroever van de Maas gelegen andere deel van de historische binnenstad. Het is een van de meest geliefde locaties in Maastricht om te wonen, werken en te genieten van het Bourgondische leven. Bent u op zoek naar een appartement in één van de mooiste wijken van Maastricht? Dan is Stellalunet 34-B absoluut een bezoek waard. Neem contact met ons op voor een vrijblijvende bezichtiging. Wij laten u dit appartement graag persoonlijk zien.

Ter bescherming van de belangen van zowel koper als verkoper, wordt uitdrukkelijk gesteld dat een koopovereenkomst met betrekking tot deze onroerende zaak eerst dan tot stand komt nadat koper en verkoper de koopovereenkomst hebben getekend ("schriftelijkheidsvereiste").

De termijn die wordt opgenomen voor eventuele (overeengekomen) ontbindende voorwaarden (bv. Financiering) is in de regel 4 tot 6 weken na het sluiten van de mondelinge wilsovereenkomst.

De waarborgsom/bankgarantie is 10% van de koopsom. De koper dient deze 2 weken ná het vervallen van de ontbindende voorwaarden bij de desbetreffende notaris te deponeren.

Afhankelijk van de situatie van de woning, is de makelaar bevoegd om aanvullende bepalingen op te nemen in de koopovereenkomst, zoals een ouderdomsclausule of niet-bewoond clausule.

Koper is te allen tijde gerechtigd voor eigen rekening een bouwkundige keuring te (laten) verrichten dan wel andere adviseurs te raadplegen teneinde een goed inzicht te verkrijgen over de staat van onderhoud.

Bovenstaande vrijblijvende informatie is door Pooters Makelaardij met de nodige zorgvuldigheid samengesteld. Echter aanvaard Pooters Makelaardij geen enkele aansprakelijkheid voor enige onvolledigheid, onjuistheid of anderszins, dan wel de gevolgen daarvan. Oppervlakten en maten zijn indicatief.

 

 

 

Prijs details

Vraagprijs : € 395.000,- k.k.
Aanvaarding : in overleg

Vergelijkbare woningen

Sphinxlunet 42 C

€ 350.000,- k.k.

Maastricht, Ceramique
appartement
2 slaapkamer(s)
74 m2
300 m3
Bekijk details

Wilhelminasingel 50 D

€ 400.000,- k.k.

Maastricht, Wyck
appartement
2 slaapkamer(s)
96 m2
318 m3
Bekijk details

We plaatsen cookies op je computer om jouw instellingen te bewaren en om te begrijpen hoe mensen onze website gebruiken. Door gebruikt te maken van onze website ga je hiermee akkoord.

Meer informatie