Ermerikstraat 7, Maastricht

Plot surface:

103 m2

Living space:

110 m2

Volume:

389 m3

Back to overview

Share this property:

This spacious terraced house with an extension and six solar panels is located in the sought-after Malpertuis district. With no fewer than four bedrooms, there is plenty of space for the whole family, guests, or a home office. The modern kitchen from 2016 is situated at the front and offers a wonderful place to cook and enjoy time together. At the rear, you'll find the bright living room with an extension; thanks to the skylight, natural daylight floods the space, creating a warm and open atmosphere.

Read more

Property brochure

Download

Energy label

Download

Kadasterplan

Download

Viewing appointment not possible.

You need a registered account to plan viewings.

Sign up Login

Features

District : Malpertuis
Type : dwelling house
Type of construction : townhouse
Living space : 110 m²
Plot surface : 103 m²
Volume : 389 mᶟ
Number of bedrooms : 4 bedroom(s)
Condition : good
Year of build : 1996
Energy label : B

Isolation and installations

Type isolatie : wall insulation, roof insulation, floor insulation
Type of heating : private highefficiency boiler
Hot water installions :
C.V.-combi (hot water section) : Yes
Ventilation : mechanically
Solar panels : 6
Beglazing living room : double
Beglazing bedroom : double

Dimensions and features

Living room : 32 m²
Hall : 7 m²
Kitchen : 11 m²
Kitchen equipment : kitchen sink, 5 cooking plates, gas, combi-oven, tall refrigerator, dishwasher, kitchen hood, coffee machine
Bathroom : 4 m²
Bathroom facilities : bath, sink
Toilet : 1 m²
Toilet facilities : toilet, washbasin
Bedroom 1 : 9 m²
Bedroom 2 : 7 m²
Bedroom 3 : 12 m²
Bedroom 4 : 38 m²
StoreRoom : 6 m²
Parking : free parking
Outside space : garden
Attic : 38 m²
PrivateBicycleShed : Yes

Description

This spacious terraced house with an extension and six solar panels is located in the sought-after Malpertuis district. With no fewer than four bedrooms, there is plenty of space for the whole family, guests, or a home office. The modern kitchen from 2016 is situated at the front and offers a wonderful place to cook and enjoy time together. At the rear, you'll find the bright living room with an extension; thanks to the skylight, natural daylight floods the space, creating a warm and open atmosphere.

The property has an energy label B and is ideally located: peaceful, yet close to everything you need. The MUMC+, Maastricht University, and Brusselsepoort shopping area are all just a short distance away.

Layout:

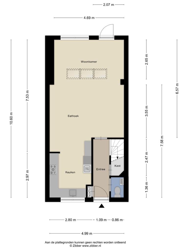
Ground floor:
Through the entrance hall with meter cupboard, you reach the living room, staircase, storage cupboard, and the toilet with standing closet and small washbasin. The spacious living room (32 m²) is generously sized and features a beautiful wooden plank floor. It is located at the rear of the house and offers both a sitting and dining area. Thanks to the skylight in the extension, an abundance of light enters the room, giving it a warm and pleasant appearance. From the living room, you can access the garden through French doors (with insect screen). The garden is maintenance-free, features a back entrance, and includes a large storage shed. The rear garden is situated on the sunny southeast.

At the front of the house is the open kitchen (11 m²) in a corner arrangement. This modern kitchen is equipped with various built-in appliances, including a 5-burner gas hob with extractor hood, dishwasher, combi-oven, fridge-freezer, sink, and an integrated coffee machine.

First floor:
The landing on the first floor provides access to three full-size bedrooms and the bathroom. The bathroom (4 m²) is partially tiled and features a bath-shower combination, washbasin with cabinet, window for natural ventilation, radiator, and a mirror with LED lighting.
Bedroom 1 (9 m²) is located at the front of the house and is ideal as a children's room, office, or guest room. The wide window allows plenty of natural light to enter, creating a fresh and open feel.
Bedroom 2 (7 m²) is located at the rear with a view over the garden and includes a built-in wardrobe.
The master bedroom (12 m²) is also located at the rear, offers ample space for a large bed and wardrobe, and is equipped with air conditioning, ensuring a comfortable temperature year-round. All bedrooms are fitted with a high-quality laminate floor.

Second floor:
A fixed staircase leads to the second floor, where a spacious fourth bedroom (38 m²) has been created. There is also a practical, open technical room with connections for the washing machine and dryer. This room also houses the inverter for the solar panels, the central heating installation, and the mechanical ventilation system. The entire second floor has a vinyl floor.

Additional information:

  • Well-maintained property

  • Equipped with four full-sized bedrooms

  • Wooden window frames with double glazing throughout

  • Partially electric shutters at the rear on the first floor

  • Heating and hot water via a combi boiler (Remeha HR; 2016; owned)

  • Luxury open kitchen with high-quality appliances, updated in 2016

  • Mechanical ventilation present

  • Rear garden with favourable southeast orientation

  • Centrally located near main roads and Maastricht city centre

  • Definitive energy label B

  • Plenty of free parking available in the street

General information:
Ermerikstraat 7 is perfectly located for those who enjoy peaceful living while keeping all amenities within easy reach. Close by you'll find the MUMC+, Maastricht University, Malpertuis shopping centre, and Brusselsepoort. The area offers various shops, restaurants, sports and recreational facilities, and schools. The historic city centre and Maastricht's railway station are reachable within 10 minutes by bike. Public transport connections are excellent, and main access roads are nearby. A particularly desirable location for families, starters, and professionals alike.

To protect the interests of both buyer and seller, it is expressly stated that a purchase agreement for this property is only concluded once both parties have signed the contract ("written form requirement"). The period included for any (agreed) dissolving conditions (e.g. financing) is generally 4 to 6 weeks after reaching the verbal agreement.

The deposit/bank guarantee is 10% of the purchase price. The buyer must deposit this amount with the notary 2 weeks after the dissolving conditions have expired.

The buyer is always entitled to carry out a structural inspection at their own expense or consult other advisers in order to obtain a clear understanding of the property's condition.

The above non-binding information has been compiled with due care by Pooters Makelaardij. However, Pooters Makelaardij accepts no liability for any inaccuracies, incompleteness, or consequences thereof. Surface areas and measurements are indicative.

Price details

Asking price : € 339.000,- k.k.
Acceptance : direct

Similar properties

Kruisboogruwe 21

€ 315.000,- k.k.

Maastricht, Malberg
dwelling house
4 bedroom(s)
101 m2
358 m3
View details

Concordiastraat 24

€ 295.000,- k.k.

Maastricht, Scharn
apartment
2 bedroom(s)
92 m2
425 m3
View details

We place cookies on your computer to remember your settings and understand how people use our website. By using this site you accept this.

More information