Bieslanderweg 17, Maastricht

Perceeloppervlakte:

143 m2

Woonoppervlakte:

131 m2

Inhoud:

520 m3

Terug naar overzicht

Deel deze woning:

Op een geliefde locatie, op korte loopafstand van het historische stadscentrum van Maastricht, ligt deze verrassend ruime en sfeervolle tussenwoning. De woning is gemoderniseerd en biedt een uitstekende combinatie van karakter, comfort en functionaliteit. Met maar liefst 4 (5) slaapkamers, een zonnige tuin met achterom en een eigentijdse afwerking is dit een ideale woning voor jonge gezinnen of doorstromers die centraal willen wonen.
De groene omgeving van het nabijgelegen Jekerdal maakt de ligging extra aantrekkelijk voor wandelaars en natuurliefhebbers.

Lees meer

Woningbrochure

Download

Energielabel

Download

Kadastrale kaart

Download

Bezichtigings afspraak niet mogelijk.

U moet een geregistreerd account hebben voordat u een bezichtiging kan plannen.

Aanmelden Inloggen

Kenmerken

Wijk : Biesland
Soort : woonhuis
Bouwaard : tussenwoning
Woonoppervlakte : 131 m²
Perceeloppervlakte : 143 m²
Inhoud : 520 mᶟ
Aantal slaapkamers : 5 slaapkamer(s)
Staat : goed
Bouwjaar : 1954
Energielabel : D

Isolatie en installaties

Verwarming : privé-hoogrendementsketel
Warm water installaties : combi cv
C.V.-combi (warmwaterdeel) : Ja
Ventilatie : natuurlijk
Beglazing woonkamer : dubbel
Beglazing slaapkamer : HR++

Afmetingen en voorzieningen

Woonkamer : 34 m²
Hal : 9 m²
Keuken : 6 m²
Keuken apparatuur : spoelbak, 4 pits kookplaat, inductie, oven, koelkast hoog model, vriezer, vaatwasser, afzuigkap
Badkamer : 4 m²
Badkamer voorzieningen : dubbele wastafel, inloop douche
Toilet : 1 m²
Toilet voorzieningen : toilet
Slaapkamer 1 : 15 m²
Slaapkamer 2 : 6 m²
Slaapkamer 3 : 15 m²
Slaapkamer 4 : 18 m²
Slaapkamer 5 : 9 m²
Opbergruimte : 5 m²
Parkeergelegenheid : vergunning mogelijk, betaald parkeren
Buitenruimte : tuin en balkon
Buitenruimte : 42 m²
Toilet 2 : 1 m²
Toilet voorzieningen 2 : toilet
Kelder : 16 m²
Eigen fietsruimte : Ja

Omschrijving

Op een geliefde locatie, op korte loopafstand van het historische stadscentrum van Maastricht, ligt deze verrassend ruime en sfeervolle tussenwoning. De woning is  gemoderniseerd en biedt een uitstekende combinatie van karakter, comfort en functionaliteit. Met maar liefst 4 (5) slaapkamers, een zonnige tuin met achterom en een eigentijdse afwerking is dit een ideale woning voor jonge gezinnen of doorstromers die centraal willen wonen.
De groene omgeving van het nabijgelegen Jekerdal maakt de ligging extra aantrekkelijk voor wandelaars en natuurliefhebbers.

Indeling:

Souterrain:
De woning beschikt over een praktisch souterrain met twee ruime (provisie)kelders (beide ca. 8m²) met een stahoogte van ca. 1.98m. Hier zijn de aansluitingen voor de wasmachine en is de CV-installatie geplaatst.

Begane grond:
Via de verzorgde voortuin bereik je de entree van de woning. De hal is ruim en licht en biedt toegang tot de moderne meterkast (18 groepen), het toilet en de woonkamer.
De doorzonwoonkamer (34m²) is voorzien van een keurige laminaatvloer, een sfeervolle houtkachel en een open verbinding met de keuken. Dankzij de grote raampartijen geniet je hier van veel natuurlijk licht.
De open keuken (6m²) is in moderne wandopstelling geplaatst en beschikt over een stijlvol kookeiland met composiet werkblad. Alle benodigde inbouwapparatuur is aanwezig, waaronder een 4-pits inductiekookplaat met afzuigkap, oven, vaatwasser en koel-/vriescombinatie. De keuken biedt veel kastruimte en is een fijne plek voor kookliefhebbers.
Via de woonkamer en keuken heb je toegang tot de achtertuin, gelegen op het oosten. Hier geniet je van de ochtend- en middagzon op het terras. De tuin is volledig omsloten en beschikt over een praktische stenen berging (5m²) en een achterom, wat ideaal is voor het stallen van o.a. fietsen.

Eerste verdieping:
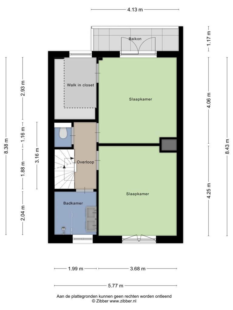
De eerste verdieping biedt een comfortabele en praktische indeling met 2 slaapkamers, een kleedkamer, een moderne badkamer en een separaat toilet. De slaapkamers zijn bereikbaar via de overloop en beschikken net als kleedkamer over een mooie laminaatvloer.
De hoofdslaapkamer (15m²) ligt aan de achterzijde van de woning en beschikt over directe toegang tot zowel een kleedruimte (6m²) als tot het balkon. Het balkon (5m²) is een heerlijke plek om in alle rust van de zon te genieten. Van de kleedkamer met praktische kastenwand kan vrij eenvoudig, indien nodig, een extra slaapkamer worden gemaakt.
De derde (slaap)kamer (15m²), gelegen aan de voorzijde, is ruim van opzet en biedt volop mogelijkheden voor het plaatsen van een tweepersoonsbed en garderobekast.
De moderne badkamer (4m²) is stijlvol afgewerkt en is voorzien van een ruime inloopdouche met een dubbele vaste wastafel met meubel..
Op de overloop bevindt zich bovendien een separaat, tweede toilet, modern uitgevoerd met zwevend closet.

Tweede verdieping:
De tweede verdieping is bereikbaar via een vaste trap en biedt twee volwaardige kamers. Slaapkamer 4 (18m²) bevindt zich aan de achterzijde van de woning en is voorzien van een kunststof dakkapel met isolerende beglazing, waardoor de kamer extra lichtinval en een ruimtelijk gevoel heeft. Dankzij de afmetingen en het comfort is dit een uitstekende ruimte voor gebruik als master bedroom, tienerkamer of werkplek.
De vijfde slaapkamer (9m²) ligt aan de voorzijde en beschikt over de originele dakkapel, wat bijdraagt aan de authentieke sfeer van de woning. Deze kamer is prima geschikt als kinderkamer, logeerkamer of rustige thuiswerkplek. Beide slaapkamers beschikken over dezelfde mooie laminaatvloer.
De zolderverdieping biedt daarnaast praktische opbergruimte en mogelijkheden voor verdere indeling of uitbreiding, zoals bijvoorbeeld het realiseren van een tweede badkamer.

Extra informatie:
- Goed onderhouden en instapklare woning met een authentiek karakter;
- Moderne open keuken voorzien van alle apparatuur;
- Definitief energielabel 'D';
- Grotendeels vernieuwd in 2019 (keuken, toilet, badkamer, elektra/meterkast);
- Vier volwaardige slaapkamers, eenvoudig uit te breiden naar vijf;
- Grotendeels voorzien van kunststof kozijnen met isolerende beglazing. Deels HR++ en HR+++;
- Verwarming en warm water wordt verkregen middels combiketel (Remeha Calenta; bj 2015; eigendom);
- Gezellige achtertuin op het oosten met achterom en stenen berging;
- Totale woonoppervlakte van circa 131m²;
- Buitenluiken aanwezig;
- Centrale ligging nabij centrum en natuurgebied.

Aanvullende informatie
De woning is gelegen in de geliefde wijk ''Biesland'' op loopafstand van het stadspark, het Jekerdal, diverse winkelvoorzieningen en scholen. De oude binnenstad is op fietsafstand gelegen. Uitvalswegen richting België en het centrum van Maastricht zijn snel en gemakkelijk te bereiken.  

Ter bescherming van de belangen van zowel koper als verkoper, wordt uitdrukkelijk gesteld dat een koopovereenkomst met betrekking tot deze onroerende zaak eerst dan tot stand komt nadat koper en verkoper de koopovereenkomst hebben getekend ("schriftelijkheidsvereiste").

De termijn die wordt opgenomen voor eventuele (overeengekomen) ontbindende voorwaarden (bv. Financiering) is in de regel 4 tot 6 weken na het sluiten van de mondelinge wilsovereenkomst.

De waarborgsom/bankgarantie is 10% van de koopsom. De koper dient deze 2 weken ná het vervallen van de ontbindende voorwaarden bij de desbetreffende notaris te deponeren.

Koper is te allen tijde gerechtigd voor eigen rekening een bouwkundige keuring te (laten) verrichten dan wel andere adviseurs te raadplegen teneinde een goed inzicht te verkrijgen over de staat van onderhoud.

Bovenstaande vrijblijvende informatie is door Pooters Makelaardij met de nodige zorgvuldigheid samengesteld. Echter aanvaard Pooters Makelaardij geen enkele aansprakelijkheid voor enige onvolledigheid, onjuistheid of anderszins, dan wel de gevolgen daarvan. Oppervlakten en maten zijn indicatief.

Prijs details

Vraagprijs : € 595.000,- k.k.
Aanvaarding : in overleg

Vergelijkbare woningen

Burgemeester Ceulenstraat 93

€ 675.000,- k.k.

Maastricht, Sint Pieter
woonhuis
3 slaapkamer(s)
175 m2
684 m3
Bekijk details

Röntgenstraat 11

€ 550.000,- k.k.

Maastricht, Brusselsepoort
woonhuis
2 slaapkamer(s)
166 m2
589 m3
Bekijk details

We plaatsen cookies op je computer om jouw instellingen te bewaren en om te begrijpen hoe mensen onze website gebruiken. Door gebruikt te maken van onze website ga je hiermee akkoord.

Meer informatie