Bongerd 21 A, Heerlen

Verdieping:

eerste verdieping

Woonoppervlakte:

81 m2

Inhoud:

268 m3

Terug naar overzicht

Deel deze woning:

Bent u op zoek naar een ruim en licht appartement met een groot dakterras, midden in het centrum van Heerlen? Dit appartement gelegen aan Bongerd 21A biedt alles wat u zoekt: een royale indeling, veel lichtinval en een uniek dakterras van ca. 35 m² dat als een waar verlengstuk van de woning fungeert.

Het appartement biedt veel mogelijkheden waardoor het kan voldoen aan diverse woonwensen. De woning beschikt momenteel over één prettige slaapkamer, maar dankzij de indeling is het eenvoudig om een tweede ruime slaapkamer te realiseren.


Lees meer

Kadastrale kaart

Download

Woningbrochure

Download

Bezichtigings afspraak niet mogelijk.

U moet een geregistreerd account hebben voordat u een bezichtiging kan plannen.

Aanmelden Inloggen

Kenmerken

Soort : appartement
Type appartement : portiekwoning
Woonoppervlakte : 81 m²
Inhoud : 268 mᶟ
Aantal slaapkamers : 1 slaapkamer
Staat : goed
Verdieping : eerste verdieping
Bouwjaar : 1930
Energielabel : D

Isolatie en installaties

Verwarming : cv
Warm water installaties : combi cv
C.V.-combi (warmwaterdeel) : Ja
Ventilatie : natuurlijk
Beglazing woonkamer : dubbel
Beglazing slaapkamer : dubbel

Afmetingen en voorzieningen

Woonkamer : 32 m²
Hal : 2 m²
Keuken : 5 m²
Keuken apparatuur : spoelbak, 4 pits kookplaat, keramisch, koelkast hoog model, afzuigkap
Badkamer : 6 m²
Badkamer voorzieningen : douche, wastafel
Toilet : 1 m²
Toilet voorzieningen : toilet, fonteintje
Slaapkamer 1 : 12 m²
Hobby kamer : 18 m²
Opbergruimte : 4 m²
Parkeergelegenheid : vergunning mogelijk, betaald parkeren
Buitenruimte : dakterras
Buitenruimte : 35 m²
Eigen fietsruimte : Ja

Omschrijving

Bent u op zoek naar een ruim en licht appartement met een groot dakterras, midden in het centrum van Heerlen? Dit appartement gelegen aan Bongerd 21A biedt alles wat u zoekt: een royale indeling, veel lichtinval en een uniek dakterras van ca. 35 m² dat als een waar verlengstuk van de woning fungeert.

Het appartement biedt veel mogelijkheden waardoor het kan voldoen aan diverse woonwensen. De woning beschikt momenteel over één prettige slaapkamer, maar dankzij de indeling is het eenvoudig om een tweede ruime slaapkamer te realiseren.

Daarnaast bevindt u zich hier op een uiterst centrale locatie in Heerlen: voorzieningen als winkels, restaurants en openbaar vervoer liggen op loopafstand, terwijl het appartement zelf een rustige en comfortabele omgeving biedt.

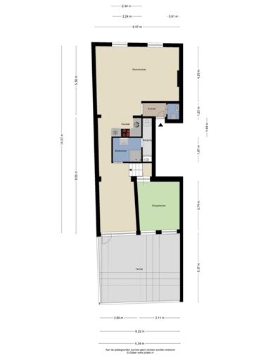
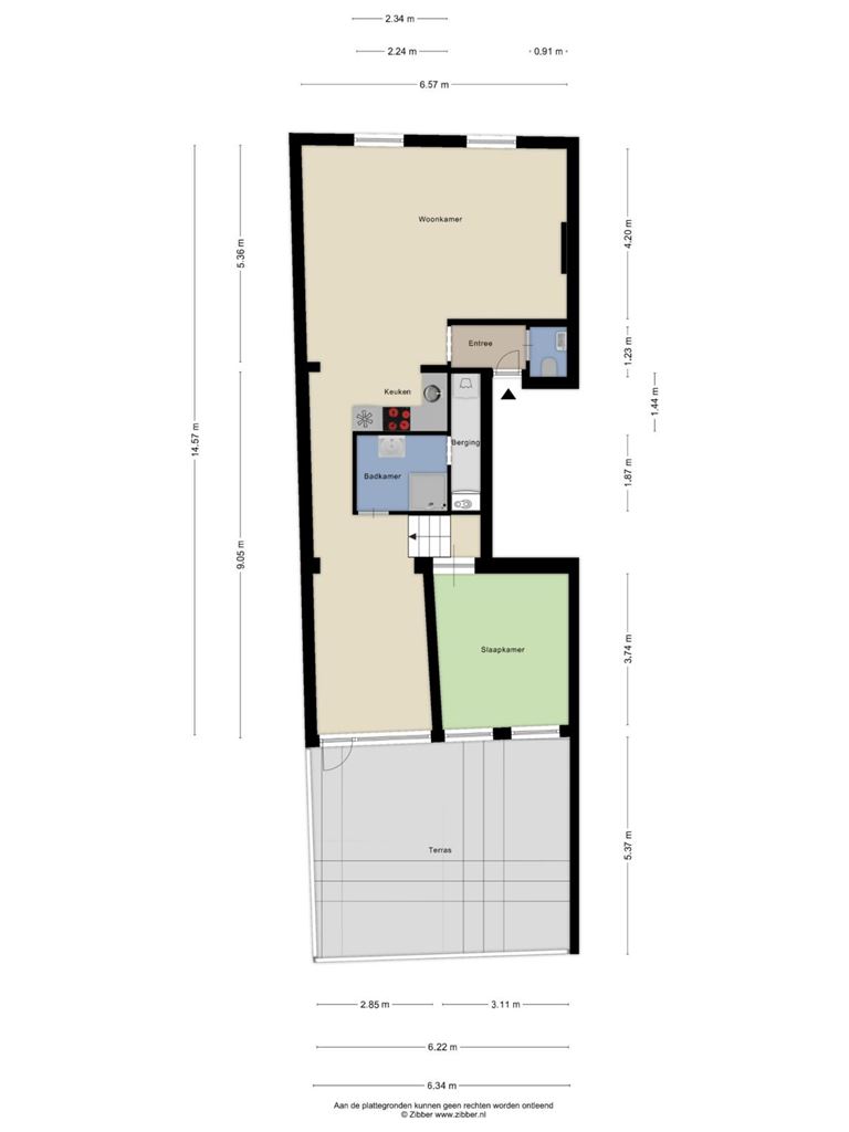
Indeling:

Begane grond:
Via de gezamenlijke entree bereikt u het appartement op de eerste verdieping. Aan de achterzijde van het perceel, bereikbaar via de Dautzenbergstraat, bevindt zich een privéberging (ca. 4 m²). Ideaal voor fietsen, seizoensspullen of extra opslag.

Eerste verdieping:
De hal vormt de toegang tot de woning en biedt toegang de woonkamer en het toilet. Aan de voorzijde bevindt zich de ruime woonkamer (ca. 37 m²), die dankzij de grote raampartijen bijzonder licht en uitnodigend is. De open keuken sluit hier naadloos op aan en is voorzien van een keramische kookplaat, afzuigkap en inbouwkoelkast. De beschikbare ruimte biedt bovendien volop mogelijkheden om de keuken uit te breiden of verder bij het woongedeelte te betrekken.

De woonkamer is het hart van het appartement. Met de stalen kozijnen, subtiele zwarte accenten en de royale lichtinval ontstaat een loft-gevoel waarin stijlvolle interieurs perfect tot hun recht komen.

Ook aan de achterzijde van het appartement bevindt zich een bijzonder sfeervol woondeelgedeelte, verdeeld over een split-level niveau. Hier zijn de badkamer, slaapkamer en een verlengde van de woonkamer gelegen. Aan deze zijde bevindt zich tevens het dakterras (ca. 35 m²), een heerlijk ruim en zonnig terras dat als een waar verlengstuk van de woonruimte fungeert.

Het verlengde van de woonkamer biedt een veelzijdige ruimte (ca. 18 m²) met veel mogelijkheden. Zo kan het worden ingezet als hobbyruimte, thuiswerkplek of loungegedeelte. Bovendien kan de ruimte eenvoudig worden omgevormd tot een zeer ruime tweede slaapkamer, waardoor het appartement over twee zeer royale slaapkamers kan beschikken. Er zijn kortweg volop mogelijkheden voor flexibiliteit en uiteenlopende woonwensen.

Momenteel beschikt het appartement over één prettige slaapkamer (ca. 12 m²) , rustig gelegen aan de achterzijde met zicht op het dakterras. De slaapkamer zondert zich dankzij de split level ligging op een prettige wijze af van de rest van het appartement.

De modern afgewerkte badkamer (ca. 6 m²) is uitgerust met een douche, wastafelmeubel en praktische wasmachine-opstelling. De cv-installatie is netjes weggewerkt, waardoor de ruimte strak en verzorgd oogt.

Extra informatie:
- Bouwjaar van het pand betreft 1930;
- Kleinschalig complex met 2 appartementen en een restaurant op de begane grond;
- VvE-bijdrage: € 57,50 per maand, inclusief opstal-, glas- en brandverzekering; 
- Het VvE-beheer is uitbesteed aan MVGM;
- Energielabel D geldig tot 18-05-2029;
- Het appartement beschikt over eigen aansluitingen voor gas, water, elektra, TV & internet;
- Voorzien van een laminaatvloer, waardoor de ruimtes een uniforme uitstraling hebben;
- Volledig voorzien van dubbele beglazing, deels met stalen en deels met houten kozijnen;
- Verwarming middels cv-ketel Remeha Avanta (eigendom, bouwjaar 2012);
- Privéberging aanwezig aan de achterzijde van het perceel;
- Alle vermelde afmetingen zijn indicatief en kunnen afwijken van de werkelijkheid.

Algemene informatie:
Bongerd 21A is gelegen op een uitstekende, centraal gelegen locatie in Heerlen. Het appartement bevindt zich op loopafstand van het bruisende stadscentrum, waar u een uitgebreid aanbod vindt aan winkels, cafés, restaurants en andere voorzieningen. Voor dagelijkse boodschappen, ontspanning of een gezellige middag uit hoeft u dus nooit ver te reizen.

Daarnaast is de woning goed bereikbaar met de auto. Via de nabijgelegen hoofdwegen en snelwegen bereikt u in korte tijd omliggende steden zoals Maastricht, Sittard, Geleen en Aken. Ook op het gebied van openbaar vervoer is de ligging ideaal. Het centraal station van Heerlen ligt op korte afstand, waardoor u snel en eenvoudig verbinding heeft met andere steden in de regio en het landelijk spoorwegnet. 

Ter bescherming van de belangen van zowel koper als verkoper, wordt uitdrukkelijk gesteld dat een koopovereenkomst met betrekking tot deze onroerende zaak eerst dan tot stand komt nadat koper en verkoper de koopovereenkomst hebben getekend ("schriftelijkheidsvereiste"). De termijn die wordt opgenomen voor eventuele (overeengekomen) ontbindende voorwaarden (bv. Financiering) is in de regel 4 tot 6 weken na het sluiten van de mondelinge wilsovereenkomst.

De waarborgsom/bankgarantie is 10% van de koopsom. De koper dient deze 2 weken ná het vervallen van de ontbindende voorwaarden bij de desbetreffende notaris te deponeren.

Koper is te allen tijde gerechtigd voor eigen rekening een bouwkundige keuring te (laten) verrichten dan wel andere adviseurs te raadplegen teneinde een goed inzicht te verkrijgen over de staat van onderhoud.

Bovenstaande vrijblijvende informatie is door Pooters Makelaardij met de nodige zorgvuldigheid samengesteld. Echter aanvaard Pooters Makelaardij geen enkele aansprakelijkheid voor enige onvolledigheid, onjuistheid of anderszins, dan wel de gevolgen daarvan. Oppervlakten en maten zijn indicatief.

 

Prijs details

Vraagprijs : € 219.000,- k.k.
Aanvaarding : in overleg

Vergelijkbare woningen

We plaatsen cookies op je computer om jouw instellingen te bewaren en om te begrijpen hoe mensen onze website gebruiken. Door gebruikt te maken van onze website ga je hiermee akkoord.

Meer informatie