Concordiastraat 24, Maastricht

Floor:

ground floor

Living space:

92 m2

Volume:

425 m3

Back to overview

Share this property:

Sold with reservation

Located in the popular Scharn neighbourhood, this recently modernised, charming 1930s ground floor flat has its own entrance. The property features a bright living room, modern open-plan kitchen (2025), luxurious bathroom (2025), two bedrooms and a low-maintenance garden.

Read more

Kadaster Map

Download

Housing brochure

Download

Energy Label

Download

Features

District : Scharn
Type : apartment
Type appartement : ground floor apartment
Living space : 92 m²
Volume : 425 mᶟ
Number of bedrooms : 2 bedroom(s)
Condition : good
Floor : ground floor
Year of build : 1938
Energy label : C

Isolation and installations

Type of heating : central heating
Hot water installions :
C.V.-combi (hot water section) : Yes
Ventilation : naturally
Beglazing living room : double
Beglazing bedroom : HR++

Dimensions and features

Living room : 28 m²
Kitchen : 11 m²
Kitchen equipment : kitchen sink, 4 cooking plates, induction, oven, tall refrigerator, dishwasher, kitchen hood
Bathroom : 5 m²
Bathroom facilities : sink, walk-in shower
Toilet : 1 m²
Toilet facilities : toilet, washbasin
Bedroom 1 : 10 m²
Bedroom 2 : 9 m²
Parking : permit possible, payed parking
Outside space : garden

Description

Located in the popular Scharn neighbourhood, this recently modernised, charming 1930s ground floor flat has its own entrance. The property features a bright living room, modern open-plan kitchen (2025), luxurious bathroom (2025), two bedrooms and a low-maintenance garden.

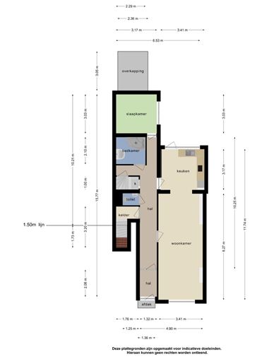
Layout:

Basement:
The spacious basement, divided into several rooms, is accessible via the hall. The central heating system is also located here.

Ground floor:
The front door opens onto the entrance hall of this modernised property. All rooms are directly accessible from the hall. The bright living room (28m²) has large windows at the front, providing pleasant natural light. Adjacent is the modern open-plan kitchen (11m²) with a corner layout, equipped with a sink, 4-burner induction hob with extractor hood, oven, dishwasher and refrigerator. The kitchen also provides access to the low-maintenance north-facing back garden.

The luxurious bathroom (5m²) has a spacious walk-in shower and a washbasin with vanity unit. The separate toilet (1m²) has a wall-mounted toilet and washbasin.
At the rear is the first bedroom (10m²), with a peaceful view of the back garden.

First floor:
Landing with access to the second bedroom (9m²).

The entire flat, with the exception of the bathroom and toilet, has stylish laminate flooring.

Additional information:
- The flat has been renovated and is ready to move into;
- Kitchen and bathroom were renovated in 2025;
- Fitted with plastic window frames with double and HR++ glazing;
- Heating and hot water are provided by a combi boiler (Vaillant HR Pro; built in 2014; owned);
- Definitive energy label "C";
- Enclosed garden facing north;
- Ample parking in the street (with permit and paid parking);
- The owners' association contribution is €60 per month and covers building, fire and glass insurance. The owners' association is otherwise dormant.

General information:
The property is conveniently located for all daily amenities such as De Leim shopping centre, public transport, Maastricht city centre, major roads, MUMC+, MECC and various faculties of Maastricht University. There are ample parking facilities (paid parking or parking with a permit) directly in front of the door and in the surrounding streets.

To protect the interests of both the buyer and the seller, it is expressly stated that a purchase agreement with regard to this immovable property is only concluded after the buyer and seller have signed the purchase agreement ('written requirement').

The term included for any (agreed) resolutive conditions (e.g. financing) is generally 4 to 6 weeks after the conclusion of the verbal agreement.

The deposit/bank guarantee is 10% of the purchase price. The buyer must deposit this with the relevant solicitor two weeks after the expiry of the resolutive conditions.

Depending on the situation of the property, the estate agent is authorised to include additional provisions in the purchase agreement, such as an age clause or unoccupied clause.

The buyer is at all times entitled to have a structural survey carried out at their own expense or to consult other advisers in order to gain a good understanding of the state of maintenance.

The above information is provided by Pooters Makelaardij without obligation and has been compiled with due care. However, Pooters Makelaardij accepts no liability whatsoever for any incompleteness, inaccuracy or otherwise, or for the consequences thereof. Areas and dimensions are indicative.

Price details

Asking price : € 295.000,- k.k.
Acceptance : direct

Similar properties

Hertogsingel 85 B

€ 350.000,- k.k.

Maastricht, Centrum
apartment
2 bedroom(s)
88 m2
330 m3
View details

Kruisboogruwe 21

€ 315.000,- k.k.

Maastricht, Malberg
dwelling house
4 bedroom(s)
101 m2
358 m3
View details

We place cookies on your computer to remember your settings and understand how people use our website. By using this site you accept this.

More information