Klosruwe 9, Maastricht

Plot surface:

190 m2

Living space:

115 m2

Volume:

471 m3

Back to overview

Share this property:

Sold with reservation

In the child-friendly neighbourhood of Malberg, we are offering this well-maintained semi-detached house. The house has a spacious living room with a semi-open kitchen, four bedrooms, a well-kept front and back garden, an attached garage and energy-saving features such as 21 solar panels, 3 air conditioners and excellent insulation. Thanks to its definitive energy label A+, this house is not only comfortable but also sustainable.

Read more

Video

Kadaster plan

Download

Property brochure

Download

Energylabel

Download

Features

District : Malberg
Type : dwelling house
Type of construction : duplex
Living space : 115 m²
Plot surface : 190 m²
Volume : 471 mᶟ
Number of bedrooms : 4 bedroom(s)
Condition : good
Year of build : 2006
Energy label : A+

Isolation and installations

Type isolatie : wall insulation, roof insulation, floor insulation
Type of heating : airco, private highefficiency boiler
Hot water installions :
C.V.-combi (hot water section) : Yes
Ventilation : mechanically
Solar panels : 21
Beglazing living room : HR++
Beglazing bedroom : HR++

Dimensions and features

Living room : 33 m²
Hall : 3 m²
Kitchen : 4 m²
Kitchen equipment : kitchen sink, 4 cooking plates, induction, combi-oven, tall refrigerator, dishwasher, kitchen hood
Bathroom : 5 m²
Bathroom facilities : bath, toilet, sink
Toilet : 1 m²
Toilet facilities : toilet, washbasin
Bedroom 1 : 15 m²
Bedroom 2 : 10 m²
Bedroom 3 : 5 m²
Bedroom 4 : 23 m²
StoreRoom : 6 m²
Garage : Yes
Garage type : single
Garage : 19 m²
Parking : free parking, double ramp
Outside space : garden
PrivateBicycleShed : Yes

Description

In the child-friendly neighbourhood of Malberg, we are offering this well-maintained semi-detached house. The house has a spacious living room with a semi-open kitchen, four bedrooms, a well-kept front and back garden, an attached garage and energy-saving features such as 21 solar panels, 3 air conditioners and excellent insulation. Thanks to its definitive energy label A+, this house is not only comfortable but also sustainable.

Layout:

Ground floor:
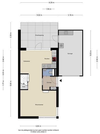
The entrance to the house is reached via the well-kept front garden with terrace and double driveway. The hall provides access to the cloakroom, meter cupboard and tiled toilet with wall-mounted toilet and washbasin.
The spacious L-shaped living room features a low-maintenance PVC floor, a practical under-stairs storage cupboard, and an open staircase with lighting leading to the first floor. The large windows allow plenty of natural light, with screens at the front providing sun protection. The semi-open kitchen is located at the rear of the house and is arranged in a corner layout with various (built-in) appliances, namely: a 4-burner induction cooktop with extractor hood, dishwasher, combi oven, refrigerator, and a sink. The total living area of the living room and kitchen is approximately 37 m².
Via the kitchen, the backyard is accessible through French doors. It is approximately 9 meters deep and 8 meters wide, beautifully landscaped, and features two terraces: a covered terrace adjacent to the kitchen and another terrace with a pergola. This allows you to enjoy sun or shade at any time of day. The garden and covered area also provide access to the attached garage (19 m²), which is equipped with a tilt door, a kitchenette with sink, a second refrigerator, and additional storage space.

First floor:
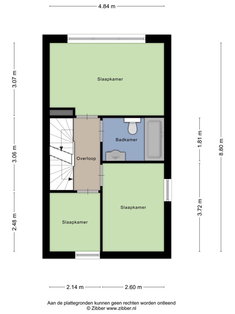
From the landing, three bedrooms are accessible, measuring approximately 15 m², 10 m², and 5 m², all equipped with laminate flooring and roller shutters. Two of the three bedrooms also have air conditioning. The fully tiled bathroom (5 m²) features a bathtub with shower combination, a washbasin cabinet, and a second wall-mounted toilet.

Second floor:
Via a fixed staircase, you reach the spacious attic floor, which benefits from plenty of natural light. This floor is currently used as an office (23 m²) but can also serve as a bedroom. This room is also equipped with laminate flooring, a roller shutter, and air conditioning. Additionally, it houses the central heating boiler, the heat recovery ventilation system (2024), and connections for laundry appliances.

Additional information:

- The property is neat and well-maintained. During construction, sustainable and high-quality materials were used.
- The house has hardwood window frames with insulating glazing (HR++). The property is also equipped with roof, cavity wall, and floor insulation.
- The windows on the first and second floors have roller shutters.
- Permanent energy label A+.
- All bedrooms have laminate flooring.
- The ground floor is largely fitted with a PVC floor.
- Heating and hot water are provided by a combi boiler (Intergast HRE, built 2013; owned).
- 3 air conditioning units installed.
- Heat recovery ventilation (HRV) system installed.
- Driveway suitable for 2 cars.
- All stated dimensions are indicative and may differ from reality.

General information:
This move-in ready property is located at Klosruwe 9 in the Malberg neighborhood of Maastricht, within walking distance of the "Centre Manjefiek Malberg." Various amenities such as shops, primary schools, public transport, Sportpark West, and Vennepark are nearby. The historic city center of Maastricht, as well as the Brusselse Poort shopping center, are within cycling distance. In addition, the neighborhood has excellent access to main roads leading to the A2 and Belgium.

To protect the interests of both buyer and seller, it is expressly stated that a purchase agreement regarding this property will only be concluded once the buyer and seller have signed the purchase agreement ("written requirement"). The period included for any (agreed) conditions precedent (e.g., financing) is generally 4 to 6 weeks after the verbal agreement.

The deposit/bank guarantee is 10% of the purchase price. The buyer must deposit this with the relevant notary within 2 weeks after the conditions precedent have expired.

The buyer is always entitled, at their own expense, to carry out a structural survey or consult other advisors to gain a clear understanding of the maintenance condition of the property.

The above non-binding information has been compiled by Pooters Makelaardij with due care. However, Pooters Makelaardij accepts no liability for any incompleteness, inaccuracies, or otherwise, or the consequences thereof. Surface areas and measurements are indicative.

Price details

Asking price : € 469.000,- k.k.
Acceptance : in consulation with

Similar properties

Kremersdreef 100

€ 385.000,- k.k.

Maastricht, Belfort
dwelling house
3 bedroom(s)
98 m2
346 m3
View details

's-Herenelderenlaan 26

€ 449.000,- k.k.

Maastricht, Dousberg-Hazendans
dwelling house
3 bedroom(s)
142 m2
528 m3
View details

We place cookies on your computer to remember your settings and understand how people use our website. By using this site you accept this.

More information