Burgemeester van Oppenstraat 79, Maastricht

Plot surface:

143 m2

Living space:

91 m2

Volume:

381 m3

Back to overview

Share this property:

This well-maintained and modernised property of approximately 91 m² offers a pleasant combination of living comfort, practical layout and sustainable amenities. The property has been renovated and made more sustainable in several areas in recent years, including plastic window frames, air conditioning, solar panels and a fully insulated extension. A ready-to-move-in property with a surprising amount of space, both inside and outside.

Read more

Property brochure

Download

Kadaster plan

Download

Viewing appointment not possible.

You need a registered account to plan viewings.

Sign up Login

Features

District : Wittevrouwenveld
Type : dwelling house
Type of construction : townhouse
Living space : 91 m²
Plot surface : 143 m²
Volume : 381 mᶟ
Number of bedrooms : 3 bedroom(s)
Condition : good
Year of build : 1943
Energy label : B

Isolation and installations

Type isolatie : roof insulation
Type of heating : airco, private highefficiency boiler
Hot water installions :
C.V.-combi (hot water section) : Yes
Maintenance contract central heating : Yes
Ventilation : mechanically
Solar panels : 15
Beglazing living room : HR++
Beglazing bedroom : HR++

Dimensions and features

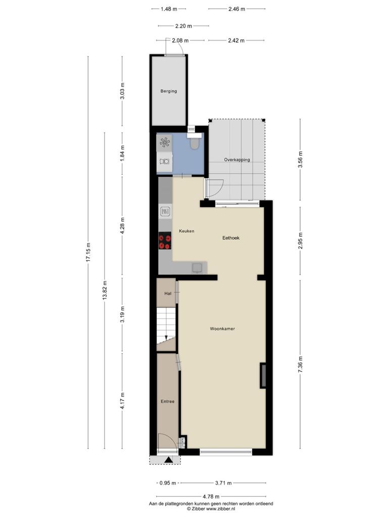
Living room : 27 m²
Hall : 4 m²
Kitchen : 16 m²
Kitchen equipment : kitchen sink, 5 cooking plates, induction, combi-oven, tall refrigerator, dishwasher, kitchen hood
Bathroom facilities : toilet, sink, walk-in shower
Toilet facilities : toilet
Bedroom 1 : 9 m²
Bedroom 2 : 12 m²
Bedroom 3 : 21 m²
Scullery : 4 m²
StoreRoom : 7 m²
Parking : permit possible, payed parking
Outside space : garden and terrace
PrivateBicycleShed : Yes

Description

This well-maintained and modernised property of approximately 91 m² offers a pleasant combination of living comfort, practical layout and sustainable amenities. The property has been renovated and made more sustainable in several areas in recent years, including plastic window frames, air conditioning, solar panels and a fully insulated extension. A ready-to-move-in property with a surprising amount of space, both inside and outside.

Layout:

Ground floor:
Entrance/hall with access to the living room. The spacious living room (27 m²) features laminate flooring, a fully insulated extension at the rear, air conditioning, and benefits from plenty of natural light. The luxury open-plan kitchen (16 m²), arranged in a corner layout, was renovated in 2019 and is equipped with a composite worktop and modern (built-in) appliances, including a 5-burner induction hob with designer extractor hood, sink, combination oven, dishwasher, and refrigerator.

Adjacent is the practical utility room with washing machine connection, toilet, and additional storage space. At the rear of the house, there is a plastic sliding door with insulating glazing leading to the garden, providing a pleasant connection between indoor and outdoor living.

The low-maintenance backyard features a covered seating area, two storage sheds (one of which was installed around 2022), rear access, and new fencing. A pleasant outdoor space offering ample opportunities for storage and relaxation.

First floor:
The first floor features two bedrooms measuring 12 m² and 9 m² respectively, both finished with laminate flooring and equipped with built-in wardrobes. The rear bedroom is fitted with air conditioning and provides access to the second floor via a fixed staircase.

The bathroom (6 m²) was updated in 2024 and includes moisture-resistant laminate flooring, a walk-in shower with rain function, wall-hung toilet, washbasin with vanity unit, and a designer radiator. The property is equipped with mechanical ventilation, contributing to a healthy indoor climate.

Second floor:
The second floor is arranged as a third bedroom (21 m²), also finished with laminate flooring. This level also houses the central heating system (Nefit HR). The property benefits from roof insulation.

Additional information:
- Equipped with plastic window frames with insulating glazing (largely HR++);
- Fully fitted with roller shutters (except for the front door);
- Well-maintained and move-in-ready mid-terrace house;
- Made more sustainable with, among other things, air conditioning and solar panels;
- Hot water and heating are provided by a combi boiler (Nefit HR; year of construction 2025; rental). Hesi approx. €45 per month;
- Mechanical ventilation system installed;
- Air conditioning in the living room (2025) and master bedroom (2020);
- Ground-floor toilet renovated in 2025;
- Left-side fencing in the backyard renewed in 2025;
- Bathroom renovated in 2024;
- 15 solar panels installed in 2024;
- The extension is fully insulated; the main roof is also insulated;
- Second storage shed placed in the backyard in 2022;
- Kitchen renovated in 2019;
- Ample parking available in the street (paid parking and permit-based).

General information:
The property is located within walking distance of various shops, primary schools, childcare facilities, and playgrounds, making the neighborhood particularly suitable for (young) families. Accessibility is excellent: Maastricht city center can be reached within minutes by bicycle or car, and public transport is available within walking distance. Major arterial roads towards the A2 and A79 are quickly accessible, making the location ideal for commuters. Several green areas and walking routes are located nearby for relaxation and recreation. The combination of tranquility, accessibility, and proximity to urban amenities makes this location especially attractive.

To protect the interests of both the buyer and the seller, it is expressly stated that a purchase agreement relating to this immovable property will only be concluded after the buyer and seller have signed the purchase agreement ('written requirement').

The term included for any (agreed) resolutive conditions (e.g. financing) is generally 4 to 6 weeks after the conclusion of the verbal agreement.

The deposit/bank guarantee is 10% of the purchase price. The buyer must deposit this with the relevant solicitor 2 weeks after the expiry of the resolutive conditions.

The buyer is at all times entitled to carry out or have carried out a structural survey at their own expense or to consult other advisers in order to obtain a good understanding of the state of maintenance.

The above non-binding information has been compiled by Pooters Makelaardij with the necessary care. However, Pooters Makelaardij accepts no liability whatsoever for any incompleteness, inaccuracy or otherwise, or the consequences thereof. Areas and sizes are indicative.

Price details

Asking price : € 330.000,- k.k.
Acceptance : in consulation with

Similar properties

Maastrichter Pastoorstraat 23 C

€ 269.000,- k.k.

Maastricht, Centrum
apartment
1 bedroom
37 m2
121 m3
View details

Wilhelminasingel 50 D

€ 375.000,- k.k.

Maastricht, Wyck
apartment
2 bedroom(s)
96 m2
318 m3
View details

We place cookies on your computer to remember your settings and understand how people use our website. By using this site you accept this.

More information