Oude Molenweg 25 C, Maastricht

Plot surface:

290 m2

Living space:

158 m2

Volume:

633 m3

Share this property:

Living in a sought-after location in Scharn, in a low-traffic street, with plenty of space, privacy, and unobstructed views of green hills? This semi-detached house from 1988, featuring a garage, double driveway, and a sunny west-facing backyard, offers everything for comfortable family living. With no fewer than five bedrooms and spacious living areas, this is an ideal home for families seeking peace, space, and a pleasant living environment, with the opportunity to further customize it to your own taste.

Read more

Property brochure

Download

Energylabel

Download

Kadaster plan

Download

Viewing appointment not possible.

You need a registered account to plan viewings.

Sign up Login

Features

District : Scharn
Type : dwelling house
Type of construction : duplex
Living space : 158 m²
Plot surface : 290 m²
Volume : 633 mᶟ
Number of bedrooms : 5 bedroom(s)
Condition : reasonable
Year of build : 1988
Energy label : A

Isolation and installations

Type isolatie : wall insulation, roof insulation, floor insulation
Type of heating : private highefficiency boiler (owner), heat pump
Hot water installions :
C.V.-combi (hot water section) : Yes
Ventilation : mechanically
Solar panels : 8
Beglazing living room : double
Beglazing bedroom : double

Dimensions and features

Living room : 45 m²
Hall : 4 m²
Kitchen : 8 m²
Kitchen equipment : kitchen sink, 4 cooking plates, induction, oven, tall refrigerator with freezer, dishwasher, kitchen hood
Bathroom : 9 m²
Bathroom facilities : bath, shower, toilet, double sinks
Toilet : 1 m²
Toilet facilities : toilet, washbasin
Bedroom 1 : 14 m²
Bedroom 2 : 11 m²
Bedroom 3 : 14 m²
Bedroom 4 : 13 m²
Bedroom 5 : 14 m²
Garage : Yes
Garage type : single
Garage : 20 m²
Parking : garage, double ramp
Outside space : garden and terrace
PrivateBicycleShed : Yes

Description

Living in a sought-after location in Scharn, in a low-traffic street, with plenty of space, privacy, and unobstructed views of green hills? This semi-detached house from 1988, featuring a garage, double driveway, and a sunny west-facing backyard, offers everything for comfortable family living. With no fewer than five bedrooms and spacious living areas, this is an ideal home for families seeking peace, space, and a pleasant living environment, with the opportunity to further customize it to your own taste.

In terms of sustainability, the house is well equipped with floor, roof, and cavity wall insulation, 8 solar panels, a solar boiler, and a recently installed hybrid heat pump (2025). This contributes to a comfortable indoor climate and results in energy label A.

Layout

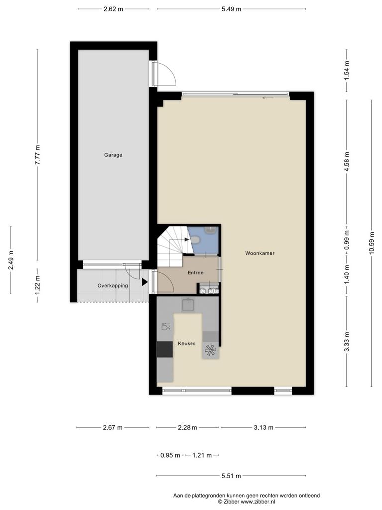
Ground floor:
Through the front garden with driveway, you reach the entrance. The hallway provides access to the toilet, meter cupboard, and staircase. The toilet is equipped with a standing toilet and a small sink.

The spacious L-shaped living room of approximately 45 m² forms the heart of the house and is divided into a sitting and dining area. The dining area is located at the front, adjacent to the semi-open kitchen of approximately 8 m². The kitchen features a plastic countertop, ample storage space, and various (built-in) appliances: a 4-burner induction hob, oven, refrigerator with freezer, and dishwasher.

At the rear is the sitting area with large windows and a full-width sliding door, providing plenty of natural light and direct access to the garden. The walls are plastered, and the entire ground floor is finished with tiled flooring and wooden window frames with double glazing.

The west-facing backyard is neatly landscaped and offers plenty of sun, privacy, and greenery. With a terrace and sunken seating area, it is a lovely place to relax. From the garden, the approximately 20 m² garage is accessible, which can also be reached via the driveway. The garage has a manually operated door with a separate pedestrian door.

First floor:
The landing provides access to four bedrooms and the bathroom, offering a practical layout with full-sized rooms.

At the front is bedroom 1 (14 m²) with laminate flooring and a French balcony with unobstructed views of green surroundings. Next to it is a former study (11 m²), currently used as a bedroom, with carpeting and a washbasin connection.

At the rear is a bedroom (14 m²) with a dormer window, providing extra space and daylight. This room has carpeting and wooden window frames with double glazing. From this bedroom, there is direct access to the bathroom, which is also accessible from the landing.

The bathroom (9 m²) is spacious and equipped with a skylight, providing natural ventilation and light. It includes a shower, a bathtub, a double fixed washbasin, and a toilet.

Additionally, at the rear, there is another bedroom (13 m²), located above the garage, with a dormer window, skylight, and laminate flooring.

Second floor:
Via a fixed staircase, you reach the second floor. Here you will find a landing with the central heating installation and a connection for the washing machine.

On this floor is a spacious bedroom (14 m²) with carpeting, a dormer window, and a skylight, providing pleasant natural light and extra space. This level features wooden window frames with double glazing.

The house has roof insulation and concrete intermediate floors, contributing to a comfortable living environment. The combination of a solar boiler and hybrid heat pump (2025) ensures an energy-efficient and future-proof heating system.

Additional information:
- Spacious semi-detached house in a sought-after location in Scharn;
- 5 full-sized bedrooms;
- Spacious and bright living room;
- Sunny west-facing backyard;
- Garage and double driveway (plenty of free parking on the street);
- Unobstructed views of green hills at the front;
- Floor, cavity wall, and roof insulation present (roof and cavity wall insulation installed during construction; floor insulation added in 2010);
- 8 solar panels;
- Heating and hot water via combi boiler (Nefit HR Proline; owned), solar boiler, and hybrid heat pump (installed in 2025);
- Energy label A;
- Equipped with mechanical ventilation;
- Conveniently located near shops, schools, and public transport, approximately a 15-minute bike ride from Maastricht city center.

General information:

The property is located on Oude Molenweg in the popular and quiet residential area of Scharn, in the eastern part of Maastricht. The street is characterized by its peaceful setting with mainly local traffic.

Various amenities such as supermarkets, schools, childcare facilities, and sports facilities are located nearby. The local shopping center of Scharn is also within short distance, making daily groceries easily accessible on foot or by bicycle.

The historic center of Maastricht is a short cycling distance away and offers a wide range of shops, restaurants, cultural venues, and recreational options. There are also several parks and walking areas nearby for relaxation and greenery.

The location is conveniently situated in relation to major roads such as the A2 and A79, as well as public transport, ensuring good accessibility to both Maastricht city center and surrounding cities and regions.

To protect the interests of both buyer and seller, it is explicitly stated that a purchase agreement for this property will only be concluded once both parties have signed the agreement ("written requirement"). The period for any agreed conditions precedent (e.g., financing) is typically 4 to 6 weeks after the verbal agreement has been reached.

The deposit/bank guarantee amounts to 10% of the purchase price. The buyer must deposit this amount with the designated notary within 2 weeks after the conditions precedent have expired.

The buyer is always entitled, at their own expense, to have a structural inspection carried out and/or to consult other advisors to gain a proper understanding of the property's condition.

The above information has been compiled by Pooters Real Estate with due care. However, no liability is accepted for any inaccuracies, incompleteness, or consequences thereof. All measurements and dimensions are indicative.

Price details

Asking price : € 450.000,- k.k
Acceptance : in consulation with

Similar properties

Bellomontedomein 42

€ 425.000,- k.k.

Maastricht, Randwyck
dwelling house
4 bedroom(s)
109 m2
359 m3
View details

Zeepziedersdreef 68

€ 425.000,- k.k

Maastricht, Belfort
dwelling house
4 bedroom(s)
141 m2
500 m3
View details

We place cookies on your computer to remember your settings and understand how people use our website. By using this site you accept this.

More information