Emmaberg 6, Valkenburg

Plot surface:

935 m2

Living space:

148 m2

Volume:

1031 m3

Back to overview

Share this property:

Kadasterplan

Download

Property brochure

Download

Energy label

Download

Viewing appointment not possible.

You need a registered account to plan viewings.

Sign up Login

Features

Type : dwelling house
Type of construction : jointed house
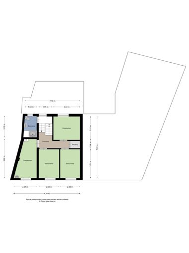
Living space : 148 m²
Plot surface : 935 m²
Volume : 1031 mᶟ
Number of bedrooms : 4 bedroom(s)
Condition : good
Year of build : 1930
Energy label : G

Isolation and installations

Type of heating : central heating, airco
Hot water installions :
C.V.-combi (hot water section) : Yes
Maintenance contract central heating : Yes
Ventilation : naturally
Beglazing living room : HR++
Beglazing bedroom : HR++

Dimensions and features

Living room : 28 m²
Hall : 12 m²
Kitchen : 12 m²
Kitchen equipment : double kitchen sink, 4 cooking plates, gas, tall refrigerator with freezer, kitchen hood
Bathroom : 4 m²
Bathroom facilities : shower, toilet, sink
Toilet : 3 m²
Toilet facilities : toilet
Bedroom 1 : 12 m²
Bedroom 2 : 10 m²
Bedroom 3 : 9 m²
Bedroom 4 : 10 m²
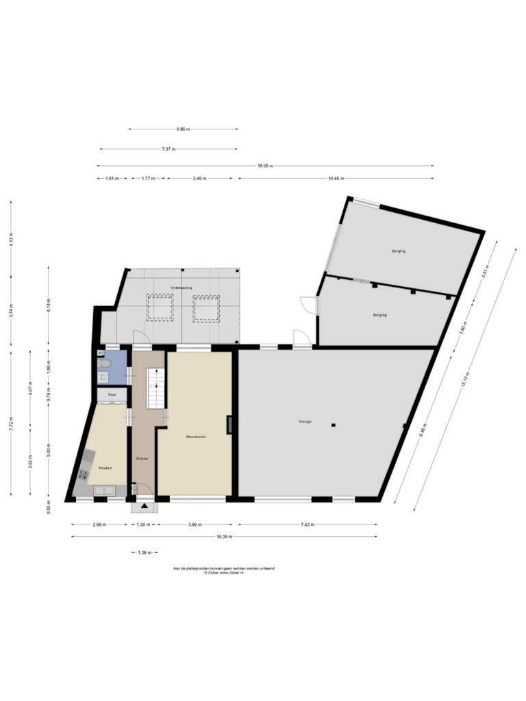
StoreRoom : 49 m²
Garage : Yes
Garage type : double
Garage : 71 m²
Parking : free parking, garage
Outside space : garden and terrace
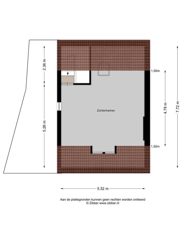
Attic : 25 m²
Basement : 21 m²
PrivateBicycleShed : Yes

Description

Price details

Asking price : € 425.000,- k.k.
Acceptance : in consulation with

Similar properties

Oranjelaan 1 D

€ 397.000,- k.k.

Valkenburg
apartment
2 bedroom(s)
110 m2
362 m3
View details

Oranjelaan 1 A

€ 499.000,- k.k.

Valkenburg
apartment
2 bedroom(s)
141 m2
465 m3
View details

We place cookies on your computer to remember your settings and understand how people use our website. By using this site you accept this.

More information