Valkenburgerweg 83, Wijlre

Plot surface:

584 m2

Living space:

197 m2

Volume:

909 m3

Back to overview

Share this property:

This spacious detached house, built in 1937, offers an ideal combination of comfortable living and multifunctional use. It features a separate kitchen, a spacious dining and living room, and no fewer than four bedrooms, one of which is accessible via a fixed staircase to the attic. With a double garage and attached space, it is particularly suitable for working from home or practising an independent profession. The house is easily accessible via the driveway at the rear, which provides extra privacy and practical ease of use. The house has energy label C, 16 solar panels, 3 air conditioners and an insulated roof.

Read more

Energielabel Valkenburgerweg 83 Wijlre.pdf

Download

Kadastrale kaart - Wijlre D 3763.pdf

Download

Viewing appointment not possible.

You need a registered account to plan viewings.

Sign up Login

Features

Type : dwelling house
Type of construction : detached house
Living space : 197 m²
Plot surface : 584 m²
Volume : 909 mᶟ
Number of bedrooms : 4 bedroom(s)
Condition : good
Year of build : 1937
Energy label : C

Isolation and installations

Type isolatie : roof insulation
Type of heating : central heating, airco, underfloor Heating
Hot water installions :
C.V.-combi (hot water section) : Yes
Ventilation : mechanically
Solar panels : 16
Beglazing living room : double
Beglazing bedroom : HR++

Dimensions and features

Living room : 22 m²
Dining room : 15 m²
Hall : 13 m²
Kitchen : 20 m²
Kitchen equipment : kitchen sink, 4 cooking plates, induction, combination microwave, tall refrigerator, dishwasher, kitchen hood, quooker
Bathroom : 12 m²
Bathroom facilities : bath, toilet, sink, walk-in shower
Toilet : 1 m²
Toilet facilities : toilet
Bedroom 1 : 20 m²
Bedroom 2 : 13 m²
Bedroom 3 : 7 m²
Bedroom 4 : 32 m²
Scullery : 3 m²
StoreRoom : 15 m²
Garage : Yes
Garage type : double
Garage : 46 m²
Parking : double ramp
Outside space : garden and terrace
Attic : 55 m²
Basement : 16 m²
PrivateBicycleShed : Yes

Description

This spacious detached house, built in 1937, offers an ideal combination of comfortable living and multifunctional use. It features a separate kitchen, a spacious dining and living room, and no fewer than four bedrooms, one of which is accessible via a fixed staircase to the attic. With a double garage and attached space, it is particularly suitable for working from home or practising an independent profession. The house is easily accessible via the driveway at the rear, which provides extra privacy and practical ease of use. The house has energy label C, 16 solar panels, 3 air conditioners and an insulated roof.

Layout:

Basement:
Storage cellar, accessible from the hall, ideal for storage space.

Ground floor:
Entrance/hall (approx. 13 m²) providing access to the living room, kitchen, toilet, cellar and the hallway leading to the first floor. The L-shaped living room (approx. 37 m²) is divided into a dining and living area. The cosy living room is a wonderful place to relax and offers unobstructed, panoramic views of the Gerendal. The room has warm wooden flooring and is equipped with Daikin air conditioning, ensuring optimal comfort in every season. The wood-burning stove forms the atmospheric centrepiece of the room and not only provides cosiness, but also pleasant and efficient heat. The kitchen (approx. 20 m²) is located on the left side of the entrance and features an island and wood-look kitchen units. The island has a Quooker, sink and dishwasher (Miele). The wall units with base and wall cabinets are equipped with the following built-in appliances (AEG): a 4-burner induction hob, stainless steel extractor hood, refrigerator and combination microwave. The partially tiled modern toilet has a wall-mounted toilet. The hallway leading to the first floor has enough space for a wardrobe. The hall, kitchen, toilet and hallway have a gravel floor.
Outside, there is a double garage with a sectional door, ideal for hobbies or parking several vehicles. Adjacent to the house is a salon, which could serve as a home office or practice. This space is also heated and has a sink.

First floor:
The spacious landing (with air conditioning) leads to the laundry room, bathroom, three bedrooms and the staircase to the second floor. The laundry room (approx. 3 m²) contains the white goods and a sink, ideally located on this floor close to the bedrooms. The modern bathroom, dating from 2025, is fully equipped with underfloor heating, a walk-in shower with bench, bathtub, wall-mounted toilet and washbasin in wood-look furniture. The modern bathroom, which was recently renovated (2025), is stylish and comfortably furnished. The space has a walk-in shower, wall-mounted toilet, washbasin in a wood-look cabinet and a bathtub, meeting all your comfort needs. Thanks to two windows, the bathroom enjoys pleasant natural light. The bathroom is largely tiled and finished with an eye for detail: sleek LED lighting is incorporated into the ceiling and the partition between the shower and the rest of the bathroom is covered with decorative wooden wall panels, creating a warm and modern look. Adjacent to this is the master bedroom (approx. 20 m²), which has air conditioning. Bedroom II (approx. 13 m²) and bedroom III (approx. 7 m²) are located at the front of the house. All bedrooms and the landing still have the original floorboards, except for bedroom III, which has been covered with carpet.

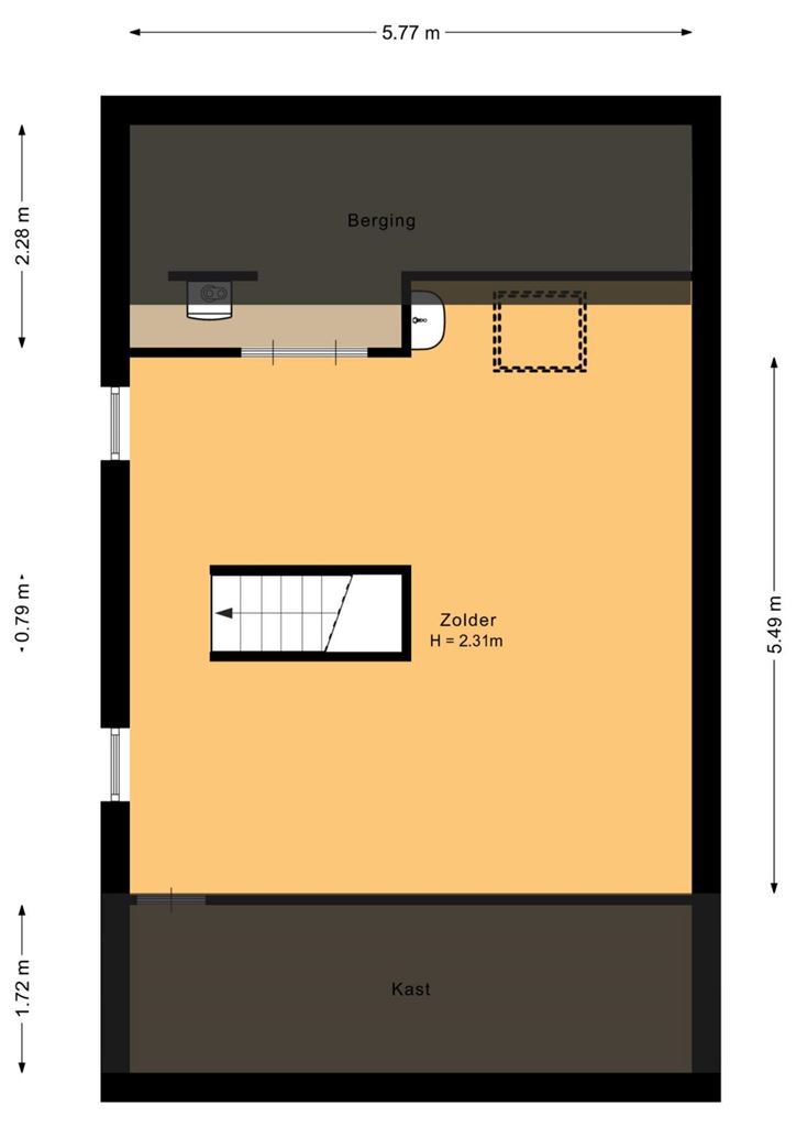
Second floor:
From the landing on the first floor, a wooden staircase provides access to the attic floor. This spacious bedroom (approx. 32 m²) is heated but also equipped with air conditioning and a washbasin. Here too, the beautiful original wooden floorboards are still present. Thanks to the spacious skylight and two windows at the front, this space does not feel like an attic. The central heating boiler is located behind the removable wall panel. From the attic, there is access to the loft for extra storage space. The roof is insulated with Unidek.

Garden and Terrace:
The property is easily accessible via the driveway at the rear, which provides extra privacy and practical ease of use.

Additional information:
- Energy label C, valid until 01-12-2035;
- Nefit Trendline central heating boiler, owned, built in 2020;
- 16 solar panels, owned and installed in 2020;
- 3 air conditioners and 1 Daikin floor unit, for heating and cooling;
- Meter cupboard, 3-phase connection with high-voltage current;
- Plastic window frames, mostly fitted with HR++ glazing;
- Mostly fitted with roller shutters.

General information:
To protect the interests of both the buyer and the seller, it is expressly stated that a purchase agreement relating to this immovable property will only be concluded after the buyer and seller have signed the purchase agreement ('written requirement').

The term included for any (agreed) resolutive conditions (e.g. financing) is generally 4 to 6 weeks after the conclusion of the verbal agreement.

The deposit/bank guarantee is 10% of the purchase price. The buyer must deposit this with the relevant solicitor two weeks after the expiry of the resolutive conditions.

Depending on the situation of the property, the estate agent is authorised to include additional provisions in the purchase agreement, such as an age clause or unoccupied clause.

The buyer is at all times entitled to have a structural survey carried out at their own expense or to consult other advisers in order to gain a good understanding of the state of maintenance.

The above non-binding information has been compiled by Pooters Makelaardij with the necessary care. However, Pooters Makelaardij accepts no liability whatsoever for any incompleteness, inaccuracy or otherwise, or the consequences thereof. Areas and sizes are indicative.

Price details

Asking price : € 695.000,- k.k.
Acceptance : in consulation with

Similar properties

We place cookies on your computer to remember your settings and understand how people use our website. By using this site you accept this.

More information