Bongerd 21 A, Heerlen

Floor:

first floor

Living space:

81 m2

Volume:

268 m3

Back to overview

Share this property:

Under offer

Are you looking for a spacious and bright flat with a large roof terrace, right in the centre of Heerlen? This flat located at Bongerd 21A offers everything you are looking for: a spacious layout, lots of natural light and a unique roof terrace of approx. 35 m² that serves as a true extension of the home.

The flat offers many possibilities, allowing it to meet a variety of living requirements. The property currently has one pleasant bedroom, but thanks to the layout, it would be easy to create a second spacious bedroom.

Read more

Kadaster Map

Download

Property brochure

Download

Energy label

Download

Features

Type : apartment
Type appartement : tenement house
Living space : 81 m²
Volume : 268 mᶟ
Number of bedrooms : 1 bedroom
Condition : good
Floor : first floor
Year of build : 1930
Energy label : D

Isolation and installations

Type of heating : central heating
Hot water installions :
C.V.-combi (hot water section) : Yes
Ventilation : naturally
Beglazing living room : double
Beglazing bedroom : double

Dimensions and features

Living room : 32 m²
Hall : 2 m²
Kitchen : 5 m²
Kitchen equipment : kitchen sink, 4 cooking plates, ceramic, tall refrigerator, kitchen hood
Bathroom : 6 m²
Bathroom facilities : shower, sink
Toilet : 1 m²
Toilet facilities : toilet, washbasin
Bedroom 1 : 12 m²
Hobby room : 18 m²
StoreRoom : 4 m²
Parking : permit possible, payed parking
Outside space : roof terrace
Outside space : 35 m²
PrivateBicycleShed : Yes

Description

Are you looking for a spacious and bright flat with a large roof terrace, right in the centre of Heerlen? This flat located at Bongerd 21A offers everything you are looking for: a spacious layout, lots of natural light and a unique roof terrace of approx. 35 m² that serves as a true extension of the home.

The flat offers many possibilities, allowing it to meet a variety of living requirements. The property currently has one pleasant bedroom, but thanks to the layout, it would be easy to create a second spacious bedroom.

In addition, you are in an extremely central location in Heerlen: amenities such as shops, restaurants and public transport are within walking distance, while the flat itself offers a quiet and comfortable environment.

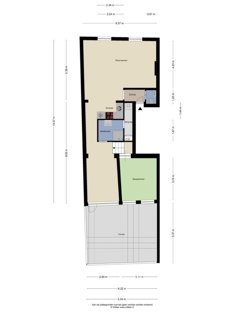
Layout:

Ground floor:
The shared entrance leads to the flat on the first floor. At the rear of the property, accessible via Dautzenbergstraat, there is a private storage room (approx. 4 m²). Ideal for bicycles, seasonal items or extra storage.

First floor:
The hall provides access to the living room and toilet. At the front is the spacious living room (approx. 37 m²), which is particularly light and inviting thanks to the large windows. The open kitchen connects seamlessly to this and is equipped with a ceramic hob, extractor hood and built-in refrigerator. The available space also offers plenty of opportunities to expand the kitchen or integrate it further into the living area.

The living room is the heart of the flat. With its steel window frames, subtle black accents and generous natural light, it creates a loft-like feel in which stylish interiors come into their own.

At the rear of the flat, there is also a particularly attractive living area, spread over a split-level floor. Here you will find the bathroom, bedroom and an extension of the living room. On this side, there is also a roof terrace (approx. 35 m²), a wonderfully spacious and sunny terrace that serves as a true extension of the living space.

The extension of the living room offers a versatile space (approx. 18 m²) with many possibilities. It can be used as a hobby room, home office or lounge area. In addition, the space can easily be converted into a very spacious second bedroom, giving the flat two very generous bedrooms. In short, there are plenty of options for flexibility and a variety of living requirements.

Currently, the flat has one pleasant bedroom (approx. 12 m²), quietly located at the rear with a view of the roof terrace. Thanks to its split-level location, the bedroom is pleasantly separated from the rest of the flat.

The modern bathroom (approx. 6 m²) is equipped with a shower, washbasin and practical washing machine. The central heating system is neatly concealed, giving the room a sleek and tidy appearance.

Additional information:
- The building was constructed in 1930;
- Small-scale complex with two flats and a restaurant on the ground floor;
- Owners' association contribution: £57.50 per month, including building, glass and fire insurance;
- The owners' association management is outsourced to MVGM;
- Energy label D valid until 18 May 2029;
- The flat has its own connections for gas, water, electricity, TV and internet;
- Laminate flooring, giving the rooms a uniform look;
- Fully equipped with double glazing, partly with steel and partly with wooden frames;
- Heating by Remeha Avanta central heating boiler (owned, built in 2012);
- Private storage room at the rear of the plot;
- All dimensions mentioned are indicative and may differ from reality.

General information:
Bongerd 21A is situated in an excellent, central location in Heerlen. The flat is within walking distance of the bustling city centre, where you will find a wide range of shops, cafés, restaurants and other amenities. So you never have to travel far for your daily shopping, leisure activities or a pleasant afternoon out.

In addition, the property is easily accessible by car. Via the nearby main roads and motorways, you can quickly reach surrounding cities such as Maastricht, Sittard, Geleen and Aachen. The location is also ideal in terms of public transport. Heerlen central station is a short distance away, giving you quick and easy connections to other cities in the region and the national rail network.

To protect the interests of both the buyer and the seller, it is expressly stated that a purchase agreement with regard to this immovable property is only concluded after the buyer and seller have signed the purchase agreement ('written requirement'). The term included for any (agreed) resolutive conditions (e.g. financing) is generally 4 to 6 weeks after the conclusion of the verbal agreement.

The deposit/bank guarantee is 10% of the purchase price. The buyer must deposit this with the relevant solicitor two weeks after the expiry of the resolutive conditions.

The buyer is entitled at all times to carry out or have carried out a structural survey at their own expense or to consult other advisers in order to obtain a good understanding of the state of maintenance.

The above non-binding information has been compiled by Pooters Makelaardij with the necessary care. However, Pooters Makelaardij accepts no liability whatsoever for any incompleteness, inaccuracy or otherwise, or the consequences thereof. Areas and sizes are indicative.

Price details

Asking price : € 219.000,-
Acceptance : in consulation with

Similar properties

We place cookies on your computer to remember your settings and understand how people use our website. By using this site you accept this.

More information