Klompenstraat 10 A, Eckelrade

Plot surface:

935 m2

Living space:

168 m2

Volume:

745 m3

Share this property:

This semi-detached, terraced family home from 1978 is located in the charming church village of Eckelrade, in the municipality of Eijsden-Margraten. The house has an indoor garage and has recently been extended, resulting in no fewer than four bedrooms and a fixed staircase to the attic. The property is situated on a generous plot of approximately 935 m² and offers parking space for two cars on site. The spacious layout of the plot, combined with the quiet, village location, creates a pleasant living environment with plenty of privacy.
The house has energy label C, making it a comfortable and solid basis for a lovely family home, located in the green and beloved Heuvelland.

Read more

Energielabel Klompenstraat 10A.pdf

Download

Woningbrochure Klompenstraat 10 A, Eckelrade.pdf

Download

Kadastrale kaart - Margraten C 306.pdf

Download

Viewing appointment not possible.

You need a registered account to plan viewings.

Sign up Login

Features

Type : dwelling house
Type of construction : semi-detached house
Living space : 168 m²
Plot surface : 935 m²
Volume : 745 mᶟ
Number of bedrooms : 4 bedroom(s)
Condition : good
Year of build : 1978
Energy label : C

Isolation and installations

Type isolatie : wall insulation, roof insulation
Type of heating : central heating, underfloor Heating
Hot water installions :
C.V.-combi (hot water section) : Yes
Maintenance contract central heating : Yes
Ventilation : mechanically
Beglazing living room : HR++
Beglazing bedroom : double

Dimensions and features

Living room : 51 m²
Hall : 11 m²
Kitchen : 12 m²
Kitchen equipment : kitchen sink, 5 cooking plates, ceramic, oven, combination microwave, tall refrigerator with freezer, kitchen hood
Bathroom : 8 m²
Bathroom facilities : bath, toilet, sink, walk-in shower
Toilet : 2 m²
Toilet facilities : toilet, washbasin
Bedroom 1 : 12 m²
Bedroom 2 : 17 m²
Bedroom 3 : 13 m²
Bedroom 4 : 18 m²
Hobby room : 14 m²
StoreRoom : 47 m²
Garage : Yes
Garage type : single
Garage : 20 m²
Parking : free parking, garage, ramp
Outside space : garden and terrace
Attic : 58 m²
PrivateBicycleShed : Yes

Description

This semi-detached, terraced family home from 1978 is located in the charming church village of Eckelrade, in the municipality of Eijsden-Margraten. The house has an indoor garage and has recently been extended, resulting in no fewer than four bedrooms and a fixed staircase to the attic. The property is situated on a generous plot of approximately 935 m² and offers parking space for two cars on site. The spacious layout of the plot, combined with the quiet, village location, creates a pleasant living environment with plenty of privacy.
The house has energy label C, making it a comfortable and solid basis for a lovely family home, located in the green and beloved Heuvelland.

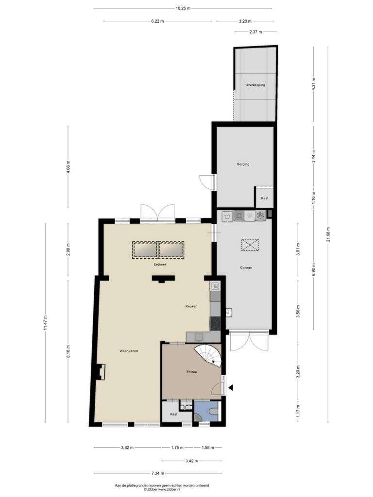
Ground floor:

The spacious entrance hall (approx. 11 m²) forms the central point of the ground floor and provides access to the toilet, the meter cupboard, a practical wall cupboard, the kitchen and the stairs to the first floor. The toilet is partially tiled and equipped with a modern wall-mounted toilet and a washbasin. The open kitchen (approx. 12 m²) has a practical L-shape and features both base and wall cabinets. The kitchen is equipped with various built-in appliances, including an Atag 5-burner ceramic hob, extractor hood, combination microwave, oven, tall refrigerator with freezer compartment and a sink. The whole is completed by a stylish granite worktop. The extension houses the cosy dining area. The living room and dining room together form a spacious living area of no less than approx. 51m².

The extension is a real eye-catcher thanks to the skylight, sleek plastered walls and ceilings, and the built-in spotlights. The extension has plastic window frames and HR++ glazing, which provides plenty of light and a comfortable living environment thanks to the underfloor heating. The entire ground floor is finished with attractive PVC flooring, which contributes to the modern and well-maintained appearance of this floor.
The extension provides access to the indoor garage and the garden. The garage contains the connections for white goods and the central heating boiler. In addition, the garage has a practical loft for extra storage space.

The spacious, south-west facing garden has a tiled terrace where you can enjoy the sun in complete privacy. A staircase leads to the higher part of the back garden, which is laid out with lawn, various trees and plants. The garden is completely enclosed by a wooden fence and a green hedge, creating a sheltered outdoor space.

First floor:
The spiral staircase leads to the first floor. Three spacious bedrooms are accessible from the landing. Bedroom I (approx. 12 m²) and bedroom II (approx. 17 m²) are located at the rear of the house, as is bedroom III (approx. 13 m²), which is located at the front. The spacious bathroom (approx. 8 m²) is also located at the front and is equipped with a walk-in shower, corner bath, wall-mounted toilet and a washbasin with granite top, base and wall cabinets, mirrors and recessed spotlights. The bathroom is fully tiled and has natural ventilation. The bedrooms and landing are finished with light parquet flooring. All wooden window frames on this floor are double glazed.

Second floor:
The attic floor is divided into two rooms. The landing can be used as a hobby room (approx. 14 m²), storage space or workspace. The other room is ideal as a fourth bedroom (approx. 18 m²). Neither room feels like an attic thanks to the generous dormer window that allows plenty of daylight in. The plastic window frames are fitted with HR++ glazing and the attic space is also heated and fitted with laminate flooring.

Additional information:

- Energy label C, valid until 6 April 2029;
- Nefit Trendline HRC 25CW411 central heating boiler, owned, built in 2018, maintenance contract;
- Underfloor heating in the extension;
- Meter cupboard, fuse box;
- Partly wooden window frames with double glazing and partly plastic window frames with HR++ glazing;
- Mostly roller shutters;
- Garden facing southwest;
- Generous plot of 935m²

General information:

Eckelrade (Limburgish: Ikkelder) is a village in the south-west of the Dutch province of Limburg in the municipality of Eijsden-Margraten. Between 1982 and 2010, it was part of the merged municipality of Margraten and has approximately 535 inhabitants. It is a typical South Limburg village with many monumental farms. Eckelrade is one of the places through which the Mergelland Route for cyclists passes. It is located between Honthem and Gronsveld, a few kilometres from Maastricht.

To protect the interests of both the buyer and the seller, it is expressly stated that a purchase agreement relating to this immovable property will only be concluded after the buyer and seller have signed the purchase agreement ('written requirement'). The term included for any (agreed) resolutive conditions (e.g. financing) is generally 4 to 6 weeks after the conclusion of the verbal agreement.

The deposit/bank guarantee is 10% of the purchase price. The buyer must deposit this with the relevant solicitor two weeks after the expiry of the resolutive conditions.
The buyer is at all times entitled to carry out or have carried out a structural survey at their own expense or to consult other advisers in order to obtain a good understanding of the state of maintenance.

The above information is provided by Pooters Makelaardij without obligation and has been compiled with due care. However, Pooters Makelaardij accepts no liability whatsoever for any incompleteness, inaccuracy or otherwise, or for the consequences thereof. Areas and dimensions are indicative.

 

Price details

Asking price : € 525.000,- k.k.
Acceptance : in consulation with

Similar properties

We place cookies on your computer to remember your settings and understand how people use our website. By using this site you accept this.

More information